Wheelock DSM sync modules data sheet
File Preview
Click below to download for free
Click below to download for free
File Data
| Name | wheelock-dsm-sync-modules-data-sheet-1748523960.pdf |
|---|---|
| Type | |
| Size | 811.71 KB |
| Downloads |
Text Preview
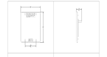
Technical Data TD450081EN Sync modules DSM sync modules provide independent operation of temporal pattern code 3 horn and synchronized flash as well as the ability to silence the horn while the strobe flash audible silence while using only a pair of wires The DSM 12 24 sync modules control either 1 Class A or two 2 Class B NAC circuits When using the frequency 520 sounder LFHSK the DSM can provide the three temporal T3 and also the code four temporal T4 carbon monoxide notification 1 Products available for use with DSM sync module HS with strobea and EH with strobe with strobe strobes strobes a HS4 LHS Strobe portion of device is compatible audible portion does not synchronize horn horn with sync strobes and EH HIFI speakers with sync strobe speakers with sync strobe sync strobes with sync strobes horn with sync strobes speaker strobes and horn strobes frequency 520Hz sounder strobes October 2016 Supersedes June 2011Wheelock DSMfirealarmresources com 1 DSM front and side views Peak Current Inrush Current Data TD450081EN October 2016 benefits Uniquely designed to accept an independent strobe and input from the FACP and convert to a single output that to Wheelock compatible appliances 3 ampere per circuit current handling at 12 or 24 VDC Low operating current draw Compatible with all standard fire alarm control panels Meets the NFPA 72 requirement for Temporal Pattern when with the Series AS AH and or Series Exceder read these specifications and associated installation before using specifying or installing this product Eaton com massnotification for current installation instructions compliances Approvals include UL Standard 1971 ULC New York City MEA State Fire Marshal CSFM and Chicago BFP information calculating the total current use Tables 1 2 to determine highest value of Average Current for the SM or DSM the listed voltage range then add this value to the total for any other appliances powered by the same source and any required safety factors Refer to Instruction Sheet for information 2 Sync module DSM current requirements AMPS Voltage Voltage VDC VDC VDC VDC VRMS VRMS VRMS VRMS VDC VDC VDC VDC VRMS VRMS VRMS VRMS Average Current 3 Current consumption DSM modules Circuit Description of DSM Module with Audible Silence with No Audible Silence with Audible Silence with No Audible Silence circuit circuit circuit circuit Module DSM dual sync modules are rated for 3.0 amperes per circuit The maximum number of interconnected DSM modules is twenty 20 Non sync appliances can be installed before or after a DSM If the non sync appliance requires audible silence four wire connection is necessary with the strobe circuit connected before the DSM NAC circuit and the audible leads connected to a silenceable NAC circuit from the FACP The audible appliance produces a momentary interruption approximately 25ms each time the strobes flash Circuit 2 may be omitted if only 1 circuit is required when using the DSM Non sync audible appliances can be installed on the audible NAC Be aware of the current requirement for the DSM module See Table 2 www eaton comWheelock DSMfirealarmresources com Data TD450081EN October 2016 4 Specifications and Ordering Information Number Code Voltage VDC Current 12 or 24 VDC Maxa Optionsb RMS current ratings are per UL average RMS method UL max current rating is the maximum RMS current within the listed voltage range 16 for 24v units For strobes the UL max current is usually at minimum listed voltage 16v for 24v units For audibles the max current is usually at the maximum listed voltage 33v for 24v units For unfiltered FWR ratings see installation instructions Refer to Data Sheet TD450028EN for mounting options The total distance from the first to the last DSM shall not exceed 1,000 feet of 18 AWG wire Use only 18 AWG wire and engineers specifications sync modules shall be Wheelock DSM sync modules Wheelock DSM sync modules shall be the master controllers for Wheelock HS Wheelock Exceder LED LSPST LHS and Wheelock AH WP MT E EH ET70 90 1080 RSS RSSP and CH70 product lines where a synchronized audible visual audible or visual only appliance is specified All modules shall be UL listed under Standard Wheelock DSM modules shall be designed to interface with AS audible strobe appliances and horn strobe appliances to produce a temporal Code 3 horn as well as synchronized strobe flash on a two wire alarm circuit modules shall provide an additional strobe circuit input output for control of either two Class NAC circuits or a single Class circuit Upon activation of the audible silence function at the fire alarm control panel the audible signal component of AS audible and or NS horn stobes may be silenced while maintaining strobe activation using the low frequency 520 sounder LFHSK the DSM shall provide the code three temporal T3 and also the code four temporal for carbon monoxide signalling module shall be DSM 12 24 for control of either Class A two 2 Class B NAC circuits The DSM dual circuit version shall provide the capability of ability to interconnect multiple DSM for synchronous horn and strobe operation on multiple circuits Interconnection capability shall be for a maximum of 40 NAC circuits All modules shall operate on either 12 or 24 VDC The 12 24 shall be 0.020 amperes 12 VDC and 0.035 amperes 24 VDC The dual circuit DSM sync module shall be capable of handling load of 3 amperes per NAC circuit at 12 or 24 VDC versions shall be polarized for DC supervision and shall incorporate screw terminals for in out field wiring of 18 to 12 AWG wire size sync modules shall mount to a 4 11 16 x 2 1 8 deep backbox ENCOURAGE AND SUPPORT NICET CERTIFICATION WARRANTY to continuous development of our products specifications and offerings are subject to change without notice in accordance with Wheelock Inc dba Eaton standard terms and conditions is a registered trademark All other trademarks are property of their respective owners Eaton1000 Eaton BoulevardCleveland OH 44122United StatesEaton comEatonLife safety mass notification solutions273 Branchport Ave Long Branch NJ 07740www eaton com massnotification 2016 EatonAll Rights ReservedPrinted in USAPublication No TD450081ENOctober 2016Wheelock DSMfirealarmresources com


