Siemens Cerberus Pyrotronics (1,552 Files)
Cerberus Pyrotronics 3 X3 Air Duct Detector 0 downloads PDF
Cerberus Pyrotronics 4, 6, 8, and 10 Sizes Vibrating and Single Stroke Bells 2537 0 downloads PDF
Cerberus Pyrotronics 6, 10, 15, 31 and 55ah sets System Batteries 3361 0 downloads PDF
Cerberus Pyrotronics A P Series Alphanumeric Display Printer Interface Modules 9357 0 downloads PDF
Cerberus Pyrotronics AA-30U Output Module 3129 0 downloads PDF
Cerberus Pyrotronics AC-22 30 Flexible Braided Actuation Hoses 6010 0 downloads PDF
Cerberus Pyrotronics ACC AnaLASER Control Cards 1162 0 downloads PDF
Cerberus Pyrotronics ACM-1 Audio Control Modules 5028 0 downloads PDF
Cerberus Pyrotronics ACU-1 2 3 4 S AnaLASER Control Units 1161 0 downloads PDF
Cerberus Pyrotronics ADB-3 ADBI-60 Audible Bases 6163 0 downloads PDF
Cerberus Pyrotronics ALD-21 Analog Loop Driver 5036 0 downloads PDF
Cerberus Pyrotronics ASC-1 Amplifier Supervisory Card 5020 0 downloads PDF
Cerberus Pyrotronics ASD-3 6 12 AnaLASER Detectors 1160 0 downloads PDF
Cerberus Pyrotronics AV-32 V-33 Audio Visual Annunciators 2510 0 downloads PDF
Cerberus Pyrotronics AW-1 Abort Station for Extinguishing Systems 6005 0 downloads PDF
Cerberus Pyrotronics BB-55 and B55R Battery Box 3326 0 downloads PDF
Cerberus Pyrotronics BC-35 Battery Charger Transfer 3177 0 downloads PDF
Cerberus Pyrotronics BK-33 BT-33 Battery Module 5 0AH 3351 0 downloads PDF
Cerberus Pyrotronics CE-S Control Element Module 9359 0 downloads PDF
Cerberus Pyrotronics CMI-300 CXL MXL Interface Module 5014 0 downloads PDF
Cerberus Pyrotronics CP-2ER CP-2ER Control Panel 6015 0 downloads PDF
Cerberus Pyrotronics CP-2HR Pry-A-Lon 1301 Control Panel 7730 0 downloads PDF
Cerberus Pyrotronics CP-35 System 3 Control Panel 3060 0 downloads PDF
Cerberus Pyrotronics CP400 Operation & Installation Manual 0 downloads PDF
Cerberus Pyrotronics CRM-4 Controllable Relay Module 0 downloads PDF
Cerberus Pyrotronics CS-10 20,CS-40 70 Cylinder Mounting Straps 6016 0 downloads PDF
Cerberus Pyrotronics CSM-4 Controllable Signal Module 0 downloads PDF
Cerberus Pyrotronics CT-35 Temporal Code Module 3068 0 downloads PDF
Cerberus Pyrotronics CXL-G Color Graphics System for the CXL 3516 0 downloads PDF
Cerberus Pyrotronics CZI Series Collective Zone Interface Modules 9358 0 downloads PDF
Cerberus Pyrotronics CZM-1 Remote Conventional Zone Module 5006 0 downloads PDF
Cerberus Pyrotronics CZM-4 Conventional Zone Module 5003 0 downloads PDF
Cerberus Pyrotronics Cerberus Pyrotronics U-MH 0 downloads PDF
Cerberus Pyrotronics Conventional Conventional Fire Alarm Systems & Accessories 6200 0 downloads PDF
Cerberus Pyrotronics DC-35S DC Voltage Regulator Module 3181 0 downloads PDF
Cerberus Pyrotronics DF-30 Ultraviolet Flame Detector 6129 0 downloads PDF
Cerberus Pyrotronics DI-3 A3 B3 Ionization Smoke Detector 6119 0 downloads PDF
Cerberus Pyrotronics DI-4A Ionization Smoke Detector 6113 0 downloads PDF
Cerberus Pyrotronics DI-6 Adjustable Ionization Smoke Detector 6126 0 downloads PDF
Cerberus Pyrotronics DT-135CL 200CL 135CS 200CS Thermal Fire Detector 6131 0 downloads PDF
Cerberus Pyrotronics DT-135R F 200R F Thermal Fire Detector 6130 0 downloads PDF
Cerberus Pyrotronics DT-3P-135 Thermal Fire Detector 6132 0 downloads PDF
Cerberus Pyrotronics EC, EH & EW Single Tone Horns 2529 0 downloads PDF
Cerberus Pyrotronics ECH-24 115 and Echs-24-EXP Electric Control Heads for Valve Actuation 6009 0 downloads PDF
Cerberus Pyrotronics EL-410D Voice Alarm System Supply Amplifier Unit 0 downloads PDF
Cerberus Pyrotronics Explosion Proof Thermal Fire Detector (Detect-A- Fire) 6128 0 downloads PDF
Cerberus Pyrotronics FM-10 20 40 70125 200 Cylinder and Valve Assemblies 6002 0 downloads PDF
Cerberus Pyrotronics FM-200 Automatic Pre-Engineered Modular Type 6014 0 downloads PDF
Cerberus Pyrotronics FM-200L 350L 500L Liquid Level Indicator 6004 0 downloads PDF
Cerberus Pyrotronics FM-350 500 Storage Container 6003 0 downloads PDF
Cerberus Pyrotronics FT-301 302 301C 301CL, FB-300 3301, FC-300, PT-301 302, FJ-30 – Remote Firefighter’s Telephone Equipment 0 downloads PDF
Cerberus Pyrotronics FireFinder Network Command Center Graphics System 5059 0 downloads PDF
Cerberus Pyrotronics Flexible Discharge Hose FM-200 Extinguishing Systems Flexible Discharge Hose 6011 0 downloads PDF
Cerberus Pyrotronics GAD and RRD Remote Graphic And Relay Driver Modules 9361 0 downloads PDF
Cerberus Pyrotronics HC-35 Release Module 3064 0 downloads PDF
Cerberus Pyrotronics HN & HNH Electron-Mechanical Horns 2528 0 downloads PDF
Cerberus Pyrotronics ICP Intelligent Control Point 5033 0 downloads PDF
Cerberus Pyrotronics ID-60I A B Initiating Device Ionization Detector 6155 0 downloads PDF
Cerberus Pyrotronics ILI-1 1A 1B 1H 1AH 1BH Intelligent Photoelectric Detector 6165 0 downloads PDF
Cerberus Pyrotronics ILP ILPT-1 Intelligent Photoelectric Detector 6164 0 downloads PDF
Cerberus Pyrotronics ILP-2 Intelligent Photoelectric Detector 6172 0 downloads PDF
Cerberus Pyrotronics ILT-1 Intelligent Thermal Detector 6167 0 downloads PDF
Cerberus Pyrotronics INS-EVI Emergency Voice Interface Modules 9355 0 downloads PDF
Cerberus Pyrotronics IXL Intermediate XL Member of InteLINK Family 9350 0 downloads PDF
Cerberus Pyrotronics LAH Lever Activated Control Head 6018 0 downloads PDF
Cerberus Pyrotronics LED Series Remote Annunciators 9356 0 downloads PDF
Cerberus Pyrotronics LED-3 Remote Annunicators 7903 0 downloads PDF
Cerberus Pyrotronics LED-8 16 Hard Wired Annunciators 7305 0 downloads PDF
Cerberus Pyrotronics LIM-1 Loop Isolator Module 5040 0 downloads PDF
Cerberus Pyrotronics LP-30 Output Module 3122 3123 0 downloads PDF
Cerberus Pyrotronics MC Three-Tone Signaling Devices F-Series Horn Horn Strobes 2525 0 downloads PDF
Cerberus Pyrotronics MC-30 Master Code Control Module 3163 0 downloads PDF
Cerberus Pyrotronics MH and MHT Mini-Horns Horn and Horn-Strobes 2534 0 downloads PDF
Cerberus Pyrotronics MH-501 517C Remote Manual Electric Control 6006 0 downloads PDF
Cerberus Pyrotronics MHST Multi-Tone Horns Temporal Horns with Synchronous Stobes 2535 0 downloads PDF
Cerberus Pyrotronics MID-16 Programmable Input Driver 5017 0 downloads PDF
Cerberus Pyrotronics MKB-2 Display Keyboard 5026 0 downloads PDF
Cerberus Pyrotronics MM-35 Meter Accessory Factory Module 3355 0 downloads PDF
Cerberus Pyrotronics MMM-1 Microphone Master Module 5025 0 downloads PDF
Cerberus Pyrotronics MMT Multi-Tone Horns 8-Tone Horns and Horn-Strobes 2536 0 downloads PDF
Cerberus Pyrotronics MOD-16 Output Driver 5008 0 downloads PDF
Cerberus Pyrotronics MOI-7 Output Input Module 5047 0 downloads PDF
Cerberus Pyrotronics MOM-2 Network Option Module Cardcage 5043 0 downloads PDF
Cerberus Pyrotronics MOM-4 Network Option Module Card Cage 5004 0 downloads PDF
Cerberus Pyrotronics MS Series Manual Fire Alarm Station 6183 0 downloads PDF
Cerberus Pyrotronics MS-151 MS-157 Manual Fire Alarm Station 6182 0 downloads PDF
Cerberus Pyrotronics MS-series Manual Stations Wiring Instructions 0 downloads PDF
Cerberus Pyrotronics MSE-2 Enclosure 5037 0 downloads PDF
Cerberus Pyrotronics MSI-10B MSI-20B Intelligent Initiating Manual Fire Alarm Boxes 6187 0 downloads PDF
Cerberus Pyrotronics MT Eight-Tone Signaling Devices F-Series Horn Horn Strobes 2526 0 downloads PDF
Cerberus Pyrotronics MT-30 Output Module 3122 3123 0 downloads PDF
Cerberus Pyrotronics MTL 8-Tone Signaling Devices F-Series Horn and Horn-Strobes 2532 0 downloads PDF
Cerberus Pyrotronics MXL Control Unit 0 downloads PDF
Cerberus Pyrotronics MXL Interactive Color Graphics System 5019 0 downloads PDF
Cerberus Pyrotronics MXL MXLV 19″ Rack Mt Equip MXL-RK-1,ACM-RK,MKB-RK, MOM-RK,MPS-RK,TSP-RK, VSM-RK,CABLES-RK,MKB-3 5057 0 downloads PDF
Cerberus Pyrotronics MXL MXLV End Equip MME-3,MBR-MP,MLE-6, MBR-3MP,MDL-1,MDB-1, MDG-1,MHD-1,MHD-2,MHD-3,MHD-4 5056 0 downloads PDF
Cerberus Pyrotronics MXL-GT MXL Color Interactive Terminal w History Logging 5032 0 downloads PDF
Cerberus Pyrotronics MXL-IQ Advanced Protection System 5054 0 downloads PDF
Cerberus Pyrotronics MXLV MXL Enclosures 5027 0 downloads PDF
Cerberus Pyrotronics MXLV Multiplex Emergency Voice Alarm Communication System 5035 0 downloads PDF
Cerberus Pyrotronics NCC LifeLINK – Network Interface Module 5041 0 downloads PDF
Cerberus Pyrotronics NET-4 Communication Module 5012 0 downloads PDF
Cerberus Pyrotronics NET-7 NET-7M Style 7 Network Interface Card 5034 0 downloads PDF
Cerberus Pyrotronics NIM-R1 LifeLINK – Network Interface Module 5045 0 downloads PDF
Cerberus Pyrotronics Nozzle 180 360 Pre-engineered System Nozzles 6001 0 downloads PDF
Cerberus Pyrotronics OCC-1 Output Control Card 5021 0 downloads PDF
Cerberus Pyrotronics OMM-1 Option Module Cardcage 5022 0 downloads PDF
Cerberus Pyrotronics OMM-2 Option Module Cardcage 5042 0 downloads PDF
Cerberus Pyrotronics PAD-2 Auxiliary Power Supply NAC Extender 3352 0 downloads PDF
Cerberus Pyrotronics PAH Pressure Activated Control Head 6017 0 downloads PDF
Cerberus Pyrotronics PAL-1 Parallel Printer 5048 0 downloads PDF
Cerberus Pyrotronics PBA-1191 Linear Beam Smoke Detector 6171 0 downloads PDF
Cerberus Pyrotronics PE-11 Photoeletric Smoke Detector 6169 0 downloads PDF
Cerberus Pyrotronics PE-3 3T Photoelectric Smoke Detector 6160 0 downloads PDF
Cerberus Pyrotronics PIM-1 Interface Module 5015 0 downloads PDF
Cerberus Pyrotronics PIM-2 Printer Interface Module 5044 0 downloads PDF
Cerberus Pyrotronics PL-35 Power Limiting Module 3180 0 downloads PDF
Cerberus Pyrotronics PLM-35 Power Limiting Module 3182 0 downloads PDF
Cerberus Pyrotronics PM-31 Program Matrix Control Module 3169 0 downloads PDF
Cerberus Pyrotronics PNC-2Z NAC Expansion Module 8105 0 downloads PDF
Cerberus Pyrotronics PPS-10M Power Supply (10 amp) 8101 0 downloads PDF
Cerberus Pyrotronics PRM-4 Relay Module 8106 0 downloads PDF
Cerberus Pyrotronics PS-35 System 3 Power Supply 3061 0 downloads PDF
Cerberus Pyrotronics PS-355 Power Supply 3067 0 downloads PDF
Cerberus Pyrotronics PS-5N7 Network Interface 5 VDC Power Supply 5046 0 downloads PDF
Cerberus Pyrotronics PSE-1 PSE-2 Enclosures 8103 0 downloads PDF
Cerberus Pyrotronics PSR-1 Remote Power Supply 5010 0 downloads PDF
Cerberus Pyrotronics PTX-12 12 amp Transformer 8102 0 downloads PDF
Cerberus Pyrotronics PXL Fire Alarm System 8100 0 downloads PDF
Cerberus Pyrotronics PZC-4D Class “A” Converter Module 8107 0 downloads PDF
Cerberus Pyrotronics PZE-4B Zone Expansion Module 8104 0 downloads PDF
Cerberus Pyrotronics Pressure Switch FM-200 Extinguishing Systems Pressure Switch 6008 0 downloads PDF
Cerberus Pyrotronics Pressure Trip FM-200 Extinguishing Systems Pressure Trip 6007 0 downloads PDF
Cerberus Pyrotronics Pull Box Remote Manual Mechanical Control Pull Box 6012 0 downloads PDF
Cerberus Pyrotronics Pyrotronics Product Line 1975 Ad 0 downloads PDF
Cerberus Pyrotronics Pyrotronics Smoke Detectors 1975 Ad 0 downloads PDF
Cerberus Pyrotronics Pyrotronics Smoke Detectors 1978 Ad 0 downloads PDF
Cerberus Pyrotronics RC-30U Confirmation Control Module 3167 0 downloads PDF
Cerberus Pyrotronics RC-318 Color Video Display Terminal 3508 0 downloads PDF
Cerberus Pyrotronics RCC-1 Remote Command Center 5039 0 downloads PDF
Cerberus Pyrotronics RCM-1 Audio Riser Control Module 5058 0 downloads PDF
Cerberus Pyrotronics REP-1 Network Repeater Module 5051 0 downloads PDF
Cerberus Pyrotronics RI-B6M Intelligent Initiating Devices Interface Module 6170 0 downloads PDF
Cerberus Pyrotronics RL-30 40 Remote Alarm Lamp 8013 0 downloads PDF
Cerberus Pyrotronics RL-6 Remote Lamp Assembly 8011 0 downloads PDF
Cerberus Pyrotronics RLI-1 2 Remote Lamp Assembly 3515 0 downloads PDF
Cerberus Pyrotronics RLP-4 8 12 Remote Lamp Panel 8012 0 downloads PDF
Cerberus Pyrotronics RM-30U RU System 3 Control Modules 3062 0 downloads PDF
Cerberus Pyrotronics RR-35 System 3 Remote Reset Device 3071 0 downloads PDF
Cerberus Pyrotronics RTA-38 System 3 Remote Indicator Unit 3069 0 downloads PDF
Cerberus Pyrotronics RemCon Remote Control Module 9353 0 downloads PDF
Cerberus Pyrotronics RemSwitch Remote Switch Module 9351 0 downloads PDF
Cerberus Pyrotronics S-2406 Infrared Flame Detector 6150 0 downloads PDF
Cerberus Pyrotronics S121 S122 Solar Blind Infra-Red Flame Detector 6144 0 downloads PDF
Cerberus Pyrotronics SCXL Super CXL Command Center 5049 0 downloads PDF
Cerberus Pyrotronics SDH-2A 2D 4A 4D, SDH-3A 3D, SDH-5A 5D 6A 6D, SDH-7A 7D 8A 8D Fire Door Holder 2350 0 downloads PDF
Cerberus Pyrotronics SEA-1 SEA-3 Polarized Electronic Horn 2512 0 downloads PDF
Cerberus Pyrotronics SH High-Output Speakers F-Series Speakers Speaker Strobes 2523 0 downloads PDF
Cerberus Pyrotronics SIEMENS CZ-10 Audio Interface Extender Module 1089 2014-03-01 0 downloads PDF
Cerberus Pyrotronics SIEMENS CZ-10 DI6 5534 Smoke Detector 0 downloads PDF
Cerberus Pyrotronics SIEMENS CZ-10 K8C Relay 0 downloads PDF
Cerberus Pyrotronics SIEMENS CZ-10 MN-7001 Power Supply 0 downloads PDF
Cerberus Pyrotronics SIEMENS CZ-10 e90-mic 5437 0 downloads PDF
Cerberus Pyrotronics SL Low-Profile Speakers F-Series Speakers Speaker Strobes 2524 0 downloads PDF
Cerberus Pyrotronics SLT-1 Leased Line Municipal Tie Module 7905 0 downloads PDF
Cerberus Pyrotronics SM Speakers F-Series Speakers and Speaker-Strobes 2531 0 downloads PDF
Cerberus Pyrotronics SM-30 Control Module 3162 0 downloads PDF
Cerberus Pyrotronics SR-30 Supplementary Relay 3121 0 downloads PDF
Cerberus Pyrotronics SR-35 Supplementary Relay 3125 0 downloads PDF
Cerberus Pyrotronics SR-35 Supplementary Relay 3130 0 downloads PDF
Cerberus Pyrotronics SRC-8 8 Relay Output Module 7902 0 downloads PDF
Cerberus Pyrotronics SXL Conventional Zone Fire Alarm Control Panel 7900 0 downloads PDF
Cerberus Pyrotronics SZE-4R Zone Output Expander Module 7904 0 downloads PDF
Cerberus Pyrotronics SZE-8A Class “A” Expander Module 7901 0 downloads PDF
Cerberus Pyrotronics SensorLINK Programmer Tester for Intelligent Initiating Devices 6154 0 downloads PDF
Cerberus Pyrotronics Siemens CZ-10 Addressable Detector Bases 1575 Smoke Detector 0 downloads PDF
Cerberus Pyrotronics Siemens PXL Operation & Installation Manual 0 downloads PDF
Cerberus Pyrotronics Strobes 0 downloads PDF
Cerberus Pyrotronics Strobes 2 0 downloads PDF
Cerberus Pyrotronics System 3 1980 Ad 0 downloads PDF
Cerberus Pyrotronics System 3 Accessories 3350 0 downloads PDF
Cerberus Pyrotronics System 3 Enclosures 3325 0 downloads PDF
Cerberus Pyrotronics TBM-1 Terminal Block Module 5029 0 downloads PDF
Cerberus Pyrotronics TL-30U Time Limit Control Module 3166 0 downloads PDF
Cerberus Pyrotronics TMM-1 Telephone Master Module 5024 0 downloads PDF
Cerberus Pyrotronics TRI-B6 B6R B6D Intelligent Initiating Interface Modules 6168 0 downloads PDF
Cerberus Pyrotronics TSP-40 Thermal Strip Printer 5007 0 downloads PDF
Cerberus Pyrotronics Tri-Tone Electronic Horns 2530 0 downloads PDF
Cerberus Pyrotronics U-MMT 0 downloads PDF
Cerberus Pyrotronics VDT-MXL Interactive Video Display Terminal 5016 0 downloads PDF
Cerberus Pyrotronics VOA Valve Outlet Adapter 6019 0 downloads PDF
Cerberus Pyrotronics VSM-1 VLM-1 Operator Switch Module LED Annunciator Module 5023 0 downloads PDF
Cerberus Pyrotronics Visual Signaling Devices F-Series ADA Stobes 2527 0 downloads PDF
Cerberus Pyrotronics Visual Signaling Devices F-Series ADA Synchronized Strobes 2533 0 downloads PDF
Cerberus Pyrotronics VoiceCom Emergency Voice Alarm Communication System 3700 0 downloads PDF
Cerberus Pyrotronics XL3 CXL Enclosures 3510 0 downloads PDF
Cerberus Pyrotronics XL3 Operation & Installation Manual 0 downloads PDF
Cerberus Pyrotronics XL3 to MXL Conversion Hardware Kits – XEA-1 2,XED-1 2,MKB-4 5055 0 downloads PDF
Cerberus Pyrotronics XLD-1 Analog Loop Driver 5053 0 downloads PDF
Cerberus Pyrotronics ZAC-30 MXLV Zone Amplifier Card 5052 0 downloads PDF
Cerberus Pyrotronics ZB-35 Linear Beam Smoke Detector Zone Module 3110 0 downloads PDF
Cerberus Pyrotronics ZC Series Speaker Strobe Zone Cards 5030 0 downloads PDF
Cerberus Pyrotronics ZC-30 31 Control Module Zone Coder 3172 0 downloads PDF
Cerberus Pyrotronics ZCT-8B Plug-in Fire Fighter Telephone Zone Card 5031 0 downloads PDF
Cerberus Pyrotronics ZN-31U Dual Contact Zone Input Module 3108 0 downloads PDF
Cerberus Pyrotronics ZN-34U U2 Gate Valve Supervision Module 3109 0 downloads PDF
Cerberus Pyrotronics ZN-34US ZN-34UA Sprinkler Valve Supervision 3111 0 downloads PDF
Cerberus Pyrotronics ZS-30 Input Module 3105 0 downloads PDF
Cerberus Pyrotronics ZU-35 DS Input Module 3107 0 downloads PDF
FireFinder XLS System Quick-Start Manual for Zeus 4 0 Programming Tool 0 downloads PDF
SIEMENS Logo 0 downloads JPG
Siemens Brochure Desigo Fire UL Panels HQ Version 0 downloads PDF
Siemens CC-5 (for FireFinder) 5-Slot Card Cage, Data Sheet 0 downloads PDF
Siemens CZ-10 D2M 9530 0 downloads PDF
Siemens CZ-10 GFR-16 General Function Relay 5377 0 downloads PDF
Siemens CZ-10 Operation Manual 0 downloads PDF
Siemens 012 EULA Desigo Cc Weather Extension Module 0 downloads PDF
Siemens 012 Read Me 3rd Party Software Agreement for Desigo CC Weather Extension Module v2 5 2 0 downloads PDF
Siemens 026 FCA2012-A1 FCA2013-A1 0 downloads TIF
Siemens 026 FDA241 0 downloads TIF
Siemens 1HU Black Red Backboxes and 2HU Black Red Backboxes, Installation Instructions 0 downloads PDF
Siemens 2020 MPI-R 0 downloads JPG
Siemens 4DGBOX- XMP 0 downloads TIF
Siemens 4DGBOX- XMP Environmental Product Declaration 0 downloads PDF
Siemens 5128 5129 Four-Channel (Fire-Secondary) Digital Communicator, data sheet 0 downloads PDF
Siemens 5128 5129 Digital Fire Communicator Connected to the MXL Control Panel5128 5129 Digital Fire Communicator, Installation Instructions 0 downloads PDF
Siemens 5128 5129 Digital Fire Communicator Connected to the SXL-EX Control Panel, Installation Instructions 0 downloads PDF
Siemens A6V10239857 en 0 downloads TIF
Siemens A6V11535568 es 0 downloads PPTX
Siemens A6V11888928 en 0 downloads TIF
Siemens A6V11888928 en (1) 0 downloads TIF
Siemens AA-30U AE-30U System 3 Audible Alarm Extender Modules, Data Sheet 0 downloads PDF
Siemens ABHW-4B 0 downloads JPG
Siemens ABHW-4B A6V10427515 en 0 downloads TIF
Siemens ABHW-4B Audible Base (with Loop Power Option), Data Sheet 0 downloads PDF
Siemens ABHW-4B Cerberus PRO Audible Base (with Loop Power Option), Data Sheet 0 downloads PDF
Siemens ABHW-4B Sounder Base, Installation Instructions 0 downloads PDF
Siemens ABHW-4BZ Intelligent Audible Base, Intelligent Audible Base 0 downloads PDF
Siemens ABHW-4S Audible Base (for sleeping areas), Data Sheet 0 downloads PDF
Siemens ABHW-4S Cerberus PRO Audible Base (for sleeping areas), Data Sheet 0 downloads PDF
Siemens ABHW-4S Sounder Base 0 downloads PDF
Siemens ABHW-4SZ Intelligent Audible Base for Sleeping Area with 520Hz Low Frequency Sounder, Installation Instructions 0 downloads PDF
Siemens ABT Suite of Software Technical Specifications 0 downloads PDF
Siemens AC Adapter, Installation Instructions 0 downloads PDF
Siemens ACM-1 Audio Control Module, Installation Instructions 0 downloads PDF
Siemens AD-3I AD-3ILP Air Duct Detectors, Installation Wiring Instructions 0 downloads PDF
Siemens AD-3XRI AD-3XRILP Air Duct Detector, Installation Instructions 0 downloads PDF
Siemens AD2-4W Air Duct Monitoring Housing, Installation Instructions 0 downloads PDF
Siemens AD2-P AD2-PR AD2-XHR Air Duct Monitoring Housings Installation Instructions 0 downloads PDF
Siemens AD2-P, AD2-PR and AD2-XHR Air Duct Monitoring Housings, Installation Instructions 0 downloads PDF
Siemens ADB-11 ADBH-11 ADBX-11 Audible Bases, Data Sheet 0 downloads PDF
Siemens ADB-11 Audible Base, Installation Instructions 0 downloads PDF
Siemens ADB-3 ADBI-60 Audible Bases, Installation Instructions 0 downloads PDF
Siemens ADB-BOX Retrofit Adapter Box for Audible Bases, Data Sheet 0 downloads PDF
Siemens ADB-BOX Retrofit Adapter Box for Audible Bases, Installation Instructions 0 downloads PDF
Siemens ADBH-11 Audible Base, Data Sheet 0 downloads PDF
Siemens ADBH-11 Audible Base, Installation Instructions 0 downloads PDF
Siemens ADBI-60A Audible Base, Installation Instructions 0 downloads PDF
Siemens ADBX-11 Audible Base, Installation Instructions 0 downloads PDF
Siemens AH Horn Series and AS Horn Strobe Series Appliances, Data Sheet 0 downloads PDF
Siemens AIC (for FireFinder) Audio Input Card, Data Sheet 0 downloads PDF
Siemens AIC Audio Input Card, Installation Instructions 0 downloads PDF
Siemens AIC Cerberus PRO Modular Audio Input Card, Data Sheet 0 downloads PDF
Siemens AIC Desigo Fire Safety Modular Audio Input Card, Data Sheet 0 downloads PDF
Siemens ALCC 0 downloads JPG
Siemens ALCC (for FireFinder) Audio Level Conversion Card, Data Sheet 0 downloads PDF
Siemens ALCC Audio Level Conversion Card, Installation Instructions 0 downloads PDF
Siemens ALCC Desigo Modular Audio Level Conversion Card, data sheet 0 downloads PDF
Siemens ALD-2I AnaIog Loop Driver, Installation Instructions 0 downloads PDF
Siemens ALI-8B Enclosure Assembly replacement plate, Installation Instructions 0 downloads PDF
Siemens APLT-XMP 0 downloads JPG
Siemens APLT-XMP Environmental Product Declaration 0 downloads PDF
Siemens APLT-XMPA6V11897431 en 0 downloads TIF
Siemens APOGEE Automation, Presentation 0 downloads PDF
Siemens APOGEE Software Lifecycle, Brochure 0 downloads PDF
Siemens ASC-1 Audio Supervision Card Module, Installation Instructions 0 downloads PDF
Siemens ASC-2 Audio Supervision Card, Installation Instructions 0 downloads PDF
Siemens ASD Filter box FDAZ292 Leaflet 0 downloads PDF
Siemens ASD Filter box FDAZ292 Mounting Maintenance 0 downloads PDF
Siemens ASD Pipe System 0 downloads PDF
Siemens AW-1 MH-501 CPY- MRS Abort Station, Manual Release Station and Main Reserve Selector Switch, Data Sheet 0 downloads PDF
Siemens Advantages to Siemens complete family of isolation 0 downloads PDF
Siemens Air-Duct Housings (FDBZ Series), (for Canada), Data Sheet 0 downloads PDF
Siemens Air-Duct Housings FDBZ Series (for Canada), Data Sheet 0 downloads PDF
Siemens AlgoRex CS11 OPC Interface Specifications Version 3 0 0 downloads PDF
Siemens Alpenlaendische Reference Flyer 0 downloads PDF
Siemens Aspirating smoke detector 0 downloads PDF
Siemens Aspirating smoke detector Ansaug-Rauchmelder Détecteur de fumée par aspiration Detectores de humos por aspiración Rivelatori di fumo ad aspirazione 0 downloads PDF
Siemens B10-115-R B6-24AC-R 08 Series Notification Appliances Bells, Data Sheet 0 downloads PDF
Siemens BACnet IP Web Interface Technical Specification Sheet 0 downloads PDF
Siemens BB-55 BB-55R Battery Box, Installation Instructions 0 downloads PDF
Siemens BB-55 and BB-55R Accessory Enclosures, Data Sheet 0 downloads PDF
Siemens BC-35 BE-35 Battery Charger Transfer Extender, Data Sheet 0 downloads PDF
Siemens BC-35 General Guidelines, Installation Instructions 0 downloads PDF
Siemens BCM Blank Plate, Installation Instructions 0 downloads PDF
Siemens BCM-12A-C Battery Cutoff Module for MXL, Installation Instructions 0 downloads PDF
Siemens BK-33 BT-33 6 0 AH BK-33 BT-34 10 0 AH System 3 Battery Modules, Data Sheet 0 downloads PDF
Siemens BK-33 Battery Bracket, Installation Instructions 0 downloads PDF
Siemens BP-61 BT-series and BTX-series System Battery Sets, Data Sheet 0 downloads PDF
Siemens BP-61 Battery Pack Cable Conversion Kit, Installation Instructions 0 downloads PDF
Siemens BTC-1 Backup Tone Card, Installation Instructions 0 downloads PDF
Siemens Become a Siemens Solution Partner - Building Automation, Flyer 0 downloads PDF
Siemens Bell CK Tag For Bell CKT END-Of-Line-Resistor, Installation Instructions 0 downloads PDF
Siemens Better Of Course Desigo CC Connect V4 2 – Highlights 0 downloads PDF
Siemens Brochure Desigo Fire UL Detector HQ Version 0 downloads PDF
Siemens Building automation and control systems - System Catalog 2016 0 downloads PDF
Siemens C-DSC C-DSC-W Dual Sync Control Unit, Installation Instructions and Wiring 0 downloads PDF
Siemens CAB-55-BRKT CAB-100-BRKT CAB-BATT Brackets, Installation Instructions 0 downloads PDF
Siemens CAB-MP 0 downloads JPG
Siemens CAB-MP Mounting Plate, Installation Instructions 0 downloads PDF
Siemens CAB-TK Enclosure Backboxes, Installation Instructions 0 downloads PDF
Siemens CAB1 CAB1R System Enclosure, Installation Instructions 0 downloads PDF
Siemens CAB1-X System Enclosure for NCCNT WAN, Installation Instructions 0 downloads PDF
Siemens CAB1R, CAB2-BB CAB2-RB and CAB3-BB CAB3-RB CAB-COVER Enclosure Backboxes, Installation Instructions 0 downloads PDF
Siemens CAB2-BD CAB2-RD Battery Box, Installation Instructions 0 downloads PDF
Siemens CAB2-BD CAB2-RD and CAB3-BD CAB3-RD Medium and Large Enclosure Doors, Installation Instructions 0 downloads PDF
Siemens CAB2-BD-OD-LP 0 downloads TIF
Siemens CAB2-XBD CAB3-XBD CAB2-XRD CAB3-XRD Medium and Large Transponder Doors, Installation Instructions 0 downloads PDF
Siemens CARES Act Flyer 0 downloads PDF
Siemens CC-2 (for FireFinder) 2-Slot Card Cage, Data Sheet 0 downloads PDF
Siemens CC-2 Cerberus PRO Modular 2-Slot Card Cage, Data Sheet 0 downloads PDF
Siemens CC-2 Desigo Modular 2-Slot Card Cage, Data Sheet 0 downloads PDF
Siemens CC-5 CC-2 System Cardcage, Installation Instructions 0 downloads PDF
Siemens CC-5 Cerberus PRO Modular 5-Slot Card Cage, Data Sheet 0 downloads PDF
Siemens CC-5 Desigo Modular 5-Slot Card Cage, Data Sheet 0 downloads PDF
Siemens CC-5 System Cardcage for NCCNT WAN, Installation Instructions 0 downloads PDF
Siemens CDC-4 (for FireFinder) Conventional Detector Card, Data Sheet 0 downloads PDF
Siemens CDC-4 Conventional Detector Card, Installation Instructions 0 downloads PDF
Siemens CDC-4 Desigo Modular Conventional Detector Card, Data Sheet 0 downloads PDF
Siemens CG-ASSY 0 downloads JPG
Siemens CG-ASSY-PAB-6A 0 downloads TIF
Siemens CGAP 0 downloads TIF
Siemens CGAP Adapter Plate to mount Model Connect X300 Gateway, Installation Instruction 0 downloads PDF
Siemens CGAP2 0 downloads JPG
Siemens CGAP2 Adapter Plate to mount Model Connect X300 Cloud Gateway, Installation Instruction 0 downloads PDF
Siemens CH Notification Appliances Chimes and Chime Strobes, Data Sheet 0 downloads PDF
Siemens CMI-300 Interface Module, Installation Instructions 0 downloads PDF
Siemens COM-BRK Communication Bracket, Installation Instructions 0 downloads PDF
Siemens CP-2ER Operation & Installation Manual 0 downloads PDF
Siemens CP-35 Operation & Installation Manual 0 downloads PDF
Siemens CP-48 Operation & Installation Manual 0 downloads PDF
Siemens CPM-LABEL-KIT PMI-3 INT OVRLS Environmental Product Declaration 0 downloads PDF
Siemens CPY- MFH20 CPY- MFH24 CPY- MFH36 Primary Secondary Configuration Hardware, Data Sheet 0 downloads PDF
Siemens CPY- MTS Sinorix Engineered Fire Suppression Systems Maintenance Switch, Data Sheet 0 downloads PDF
Siemens CPY- PAS2 Pressure-Actuated Control Head, Data Sheet 0 downloads PDF
Siemens CPY- POS Pressure-Operated Switch, Data Sheet 0 downloads PDF
Siemens CPY-150, CPY-250 Cylinder Valve Assemblies – 1-1 2 Inch Discharge Port, Data Sheet 0 downloads PDF
Siemens CPY-375, CPY-560 Cylinder Valve Assemblies - 2-1 2 inch Discharge Port, Data Sheet 0 downloads PDF
Siemens CPY-FH1 CPY-FH1 5 CPY-FH2 5 CPY-FH4 Flexible and Wire-Braid-Reinforced Discharge Hoses, Data Sheet 0 downloads PDF
Siemens CPY-LMC2 Local Manual Control Head, Data Sheet 0 downloads PDF
Siemens CPY-PLT Nitogen Pilot Cylinder, Data sheet 0 downloads PDF
Siemens CPYEC-2-24 Electric Solenoid 24VDC with Supervision, Installation Instructions 0 downloads PDF
Siemens CPYEC-2-24 Supervised Releasing Solenoid, Data Sheet 0 downloads PDF
Siemens CRC-6 (for FireFinder) Controllable Relay Card, Data Sheet 0 downloads PDF
Siemens CRC-6 Cerberus PRO Modular Controllable Relay Card, Data Sheet 0 downloads PDF
Siemens CRC-6 Controllable Relay Module, Installation Instructions 0 downloads PDF
Siemens CRC-6 Desigo Modular Controllable Relay Card, Data She 0 downloads PDF
Siemens CRM-4 Controllable Relay Module, Installation Instructions 0 downloads PDF
Siemens CSB-BRKT Mounting Bracket, Installation Instructions 0 downloads PDF
Siemens CSG-M APPENDIX For AccuLINK (CSG-M) Revision 17 01, Installation Instructions 0 downloads PDF
Siemens CSGM Interpanel Logic Support, Revision 18 04, Installation Instructions 0 downloads PDF
Siemens CSM-4 Controllable Signal Module, Installation Instructions 0 downloads PDF
Siemens CXL Operation & Installation Manual 0 downloads PDF
Siemens CXL-MP Mounting Plate, Installation Instructions 0 downloads PDF
Siemens CXL-UK Software Kit, Installation Instructions 0 downloads PDF
Siemens CZM-1B6 Remote Conventional Zone Module, Installation Instructions 0 downloads PDF
Siemens CZM-4 Conventional Zone Module, Installation Instructions 0 downloads PDF
Siemens Cerberus DMS - Graphics Editor Version Configuration 0 downloads PDF
Siemens Cerberus DMS Danger Management Station, data sheet 0 downloads PDF
Siemens Cerberus DMS NK823x Cybersecurity Guidelines 0 downloads PDF
Siemens Cerberus DMS Specification Texts V4 2 0 downloads PDF
Siemens Cerberus DMS V4 1 DNA Novigo Cybersecurity Guidelines 0 downloads PDF
Siemens Cerberus DMS v3 0 Installation Insert 0 downloads PDF
Siemens Cerberus PRO 252-Point and 504-Point Addressable Fire Alarm Control Panel 0 downloads PDF
Siemens Cerberus PRO Comprehensive Fire Protection System, Data Sheet 0 downloads PDF
Siemens Cerberus PRO Fire Safety Fire-Alarm Enclosures and Equipment, Data Sheet 0 downloads PDF
Siemens Cerberus PRO Intelligent Voice Communication, Data sheet 0 downloads PDF
Siemens Cerberus PRO Marine Fire and Detection Equipment, Data Sheet 0 downloads PDF
Siemens Cerberus PRO Modular Enclosures and Equipment, Data Sheet 0 downloads PDF
Siemens Cerberus PRO Modular Panel 0 downloads JPG
Siemens Cerberus PRO Modular system overview, Data Sheet 0 downloads PDF
Siemens Cerberus PRO System A comprehensive fire-protection system (for Canada), Data Sheet 0 downloads PDF
Siemens Cerberus PRO Tabular Annunciators Series, Data sheet 0 downloads PDF
Siemens Cerberus Pro FB-Series, FC-Series, FJ-Series, FTS-Series and PCL Series - Remote Firefighters' Telephones and Accessories, Data Sheet 0 downloads PDF
Siemens Cerberus Pyrotronics CP-30 Installation and Maintenance Instructions 0 downloads PDF
Siemens Cerberus Pyrotronics Model PB-1191 Linear Smoke Detection System Operation and Installation Manual 0 downloads PDF
Siemens Cerberus Pyrotronics TRX-2 TRX-2R TRX-2D Installation & Wiring Instructions 0 downloads PDF
Siemens Cerberus Pyrotronics XL3 Installation Wiring Instructions Addressable Interface Modules TRX-2 TRX-2R TRX-2D 0 downloads PDF
Siemens Compatible Notification Appliances 0 downloads PDF
Siemens Connect X300 Cerberus PRO Cloud Connectivity, data sheet 0 downloads PDF
Siemens Connect X300 Cloud Connectivity Desigo Fire Safety 0 downloads PDF
Siemens Connect X300 Installation Instructions 0 downloads PDF
Siemens D2300-MP Fiber Optic Interface Mounting Plate, Installation Instructions 0 downloads PDF
Siemens D2300CPS Multi Mode (850nm) Fiber Optic Interface, Installation Instructions 0 downloads PDF
Siemens D2325CPS Single Mode (1310nm) Fiber Optic Interface, Installation Instructions 0 downloads PDF
Siemens DA-3SR X3SR Relay Modules, Installation Wiring InstructionsDA-3SR X3SR Relay Modules, Installation Wiring Instructions 0 downloads PDF
Siemens DAC-NET Digital Audio Card - NETWORK, Installation Instructions 0 downloads PDF
Siemens DAC-NET, LPB Cerberus PRO Modular Digital Audio Card and Local Page Board, Data Sheet 0 downloads PDF
Siemens DAC-NET, LPB Desigo Fire Safety Modular Digital Audio Card and Local Page Board, Data Sheet 0 downloads PDF
Siemens DAC-NET, LPB Digital Audio Card and Local Page Board for Finder panels, Data Sheet 0 downloads PDF
Siemens DB-11 DB-11-11E Detector Base, Installation Wiring Instructions 0 downloads PDF
Siemens DB-11 Base Seal, Installation Instructions 0 downloads PDF
Siemens DB-3S DB-4 Base Detector Lock, Installation Instructions 0 downloads PDF
Siemens DB-3S X3RS Base, Installation Instructions 0 downloads PDF
Siemens DB-ADPT Detector Base Adapter, Installation Instructions 0 downloads PDF
Siemens DB-HR Detector Base, Installation Instructions 0 downloads PDF
Siemens DB-SEAL Base Seal, Installation Instructions 0 downloads PDF
Siemens DB-X11RS Detector Base, Installation Instructions 0 downloads PDF
Siemens DB2-HR Detector Relay Base, Installation Instructions 0 downloads PDF
Siemens DB2-HR, DB-11 and DB-11E (for Canada), Data Sheet 0 downloads PDF
Siemens DB2-HR, DB-11 and DB-11E Detector Bases (for Canada), Data Sheet 0 downloads PDF
Siemens DB2-HR, DB-11 and DB-11E Detector Bases, Data Sheet 0 downloads PDF
Siemens DB2-HR, DB-11 and DB-11E, Data Sheet 0 downloads PDF
Siemens DC-35S Voltage Regulator Module, Installation Instructions 0 downloads PDF
Siemens DCC DMS RAID Kit Installation Instructions 0 downloads PDF
Siemens DCT-1 and DCT-1E Digital Alarm Communicator & Transmiter Operation, Installation, and Maintenance Manual 0 downloads PDF
Siemens DCT-1E Five Channel Digital Communicator, Data Sheet 0 downloads PDF
Siemens DCT-IPGSM 0 downloads JPG
Siemens DCT-IPGSM120 0 downloads TIF
Siemens DCT-IPGSM24R 0 downloads JPG
Siemens DF-SX Dead Front Panel, Installation Instructions 0 downloads PDF
Siemens DFM DFM-BRK Fiber Optic Interface and Bracket for DNET, Installation Instructions 0 downloads PDF
Siemens DFM, DFM-BRK Fiber-Optic Interface and Bracket for FireFinder panels, Data Sheet 0 downloads PDF
Siemens DFM-BRK, DFM Desigo Modular Fiber-Optic Bracket, Interface, Data Sheet 0 downloads PDF
Siemens DFSM-LABEL-KIT PMI-3 INT OVRLS Environmental Product Declaration 0 downloads PDF
Siemens DGH-11 Detector Guard Housing, Data Sheet 0 downloads PDF
Siemens DI-3, DI-3H, DI-3IS, DI-A3, and DI-A3H Smoke and Fire Detector, Installation Wiring Instructions 0 downloads PDF
Siemens DLC (for FireFinder) Device Loop Card, Data Sheet 0 downloads PDF
Siemens DLC Device Loop Card, Installation Instructions 0 downloads PDF
Siemens DMC-1 Digital Message Card, Installation Instructions 0 downloads PDF
Siemens DMC-1 Upgrade Kit, Installation Instructions 0 downloads PDF
Siemens DMK-11 0 downloads JPG
Siemens DMK-11 Detector Maintenance Kit, Installation Instructions 0 downloads PDF
Siemens DML Factory Recorded Phrase Library, Installation Instructions 0 downloads PDF
Siemens DPS Mounting Hole Template, Installation Instructions 0 downloads PDF
Siemens DPU DPU-C1 DPU-PRT Device Programming Test Unit, Data Sheet 0 downloads PDF
Siemens DPU-RPT 0 downloads TIF
Siemens DSC Dual Sync Control Unit, Installation Instructions and Wiring 0 downloads PDF
Siemens DSC Dual Synchronization Control Module, Data Sheet 0 downloads PDF
Siemens DT-135 DT-200 Thermal Detectors, Installation Instructions 0 downloads PDF
Siemens DT-135R DT-135F DT-200R DT-200F Thermal Fire Detector, Data Sheet 0 downloads PDF
Siemens DT-135WP and DT-200WP Thermal Fire Detectors, Data Sheet 0 downloads PDF
Siemens DXA S04P1-B 0 downloads JPG
Siemens DXR Lab IP Controller Declaration of Conformity 0 downloads PDF
Siemens Desigo CC 0 downloads JPG
Siemens Desigo CC Cerberus DMS Installation Inset 0 downloads PDF
Siemens Desigo CC Cerberus DMS Installation Instructions 0 downloads PDF
Siemens Desigo CC - The future of building management starts now (w o poster) 0 downloads PDF
Siemens Desigo CC - The future of building management starts now (with poster) 0 downloads PDF
Siemens Desigo CC - What’s New in Version 3 0 (PDF) 0 downloads PDF
Siemens Desigo CC - the integrated building management platform 0 downloads PDF
Siemens Desigo CC 3 0 Product Family - Cybersecurity Whitepaper A4 0 downloads PDF
Siemens Desigo CC Advanced Reports V4 2 0 downloads PDF
Siemens Desigo CC Compact 0 downloads PPTX
Siemens Desigo CC Compact Sales Presentation 0 downloads PPTX
Siemens Desigo CC Compact Sales Presentation BA 0 downloads PPTX
Siemens Desigo CC Compact Sales Presentation DMS 0 downloads PPTX
Siemens Desigo CC Compact for Building Automation - Specification Texts (MA) 0 downloads PDF
Siemens Desigo CC Compact for Building Automation Specification Texts 0 downloads PDF
Siemens Desigo CC Compact for electrical applications 0 downloads PDF
Siemens Desigo CC Competitive Analysis, Presentation 0 downloads PDF
Siemens Desigo CC Connect 0 downloads PPTX
Siemens Desigo CC Customization of specific needs 0 downloads MP4
Siemens Desigo CC Designed by you, Brochure 0 downloads PDF
Siemens Desigo CC Ecosystem (2) 0 downloads PPTX
Siemens Desigo CC Ecosystem - Story for Desigo System Integrators 0 downloads PPTX
Siemens Desigo CC Extension Module for Weather Application - OSS Information 0 downloads PDF
Siemens Desigo CC Features and Benefits Full Version 0 downloads PPTX
Siemens Desigo CC Fire Safety Management Station, data sheet 0 downloads PDF
Siemens Desigo CC Getting Started 0 downloads PDF
Siemens Desigo CC Intuitive interface 0 downloads MP4
Siemens Desigo CC MP 3 0, BACnet Protocol Implementation Conformance Statement (PICS), Basic Documentation 0 downloads PDF
Siemens Desigo CC Management Station Software, Specification Sheet Verion 3 0 0 downloads PDF
Siemens Desigo CC NK823x Cybersecurity Guidelines 0 downloads PDF
Siemens Desigo CC Overview 0 downloads PPTX
Siemens Desigo CC Planning Poster 0 downloads PDF
Siemens Desigo CC Power Management 0 downloads PPTX
Siemens Desigo CC Power Management (2) 0 downloads PPTX
Siemens Desigo CC Power Management (3) 0 downloads PPTX
Siemens Desigo CC Pre-Bid Review 0 downloads PDF
Siemens Desigo CC Product Family – Cybersecurity Whitepaper 0 downloads PDF
Siemens Desigo CC Sizing Calculator MP 1 or 2 0 downloads PDF
Siemens Desigo CC Specifications 0 downloads PDF
Siemens Desigo CC The Integrated Building Management Platform 0 downloads PPTX
Siemens Desigo CC Topologies 0 downloads PPTX
Siemens Desigo CC V3 0 Security Extensions 0 downloads PPTX
Siemens Desigo CC V4 1 DNA Novigo Cybersecurity Guidelines 0 downloads PDF
Siemens Desigo CC V4 1 Engineering Help 0 downloads ZIP
Siemens Desigo CC V4 2 BIM Viewer 0 downloads PDF
Siemens Desigo CC V4 2 Connect 0 downloads PDF
Siemens Desigo CC V4 Features & Benefits 0 downloads PPTX
Siemens Desigo CC V4 Highlights 0 downloads PPTX
Siemens Desigo CC V5 0 BACnet Protocol Implementation Conformance Statement 0 downloads PDF
Siemens Desigo CC V5 1 Product Datasheet (Global) 0 downloads PDF
Siemens Desigo CC V5 1 for Security 0 downloads PPTX
Siemens Desigo CC Validation support 0 downloads MP4
Siemens Desigo CC ecosystem 0 downloads PPTX
Siemens Desigo CC for APOGEE – flyer 0 downloads PDF
Siemens Desigo CC for APOGEE, a system with innovative control, Brochure 0 downloads PDF
Siemens Desigo CC for Desigo PX – flyer 0 downloads PDF
Siemens Desigo CC for Desigo Room Automation – flyer 0 downloads PDF
Siemens Desigo CC for Desigo mass notification – flyer 0 downloads PDF
Siemens Desigo CC for Security Integrated Platform, Flyer 0 downloads PDF
Siemens Desigo CC for TBS – flyer 0 downloads PDF
Siemens Desigo CC for fire and life safety systems UL – flyer 0 downloads PDF
Siemens Desigo CC for fire and life safety systems – flyer 0 downloads PDF
Siemens Desigo CC for security – flyer 0 downloads PDF
Siemens Desigo CC learn from Solution Partner experiences 0 downloads MP4
Siemens Desigo CC template 0 downloads PPTX
Siemens Desigo CC v3 0 Installation Insert 0 downloads PDF
Siemens Desigo CC v3 0 highlights 0 downloads PPTX
Siemens Desigo CC – Licensing Overview 0 downloads PDF
Siemens Desigo CC, Precise, efficient safety and control at your fingertips 0 downloads PDF
Siemens Desigo CC-Sales Presentation-Multidiscipline 0 downloads PPTX
Siemens Desigo Control Point Engineering Manual for Americas Region 0 downloads PDF
Siemens Desigo Control Point Operation Manual 0 downloads PDF
Siemens Desigo Control Point Operation Manual for Americas Region 0 downloads PDF
Siemens Desigo DXR Room Automation Stations DXR2 E18 Data Sheet 0 downloads PDF
Siemens Desigo DXR Room Automation Stations DXR2 M11 Data Sheet 0 downloads PDF
Siemens Desigo DXR Room Automation Stations DXR2 M18 Data Sheet 0 downloads PDF
Siemens Desigo FC 2005 Head on door closed large 0 downloads TIF
Siemens Desigo Fire Cloud Apps Brochure 0 downloads PDF
Siemens Desigo Fire Safety - Comprehensive Fire Protection System, Data Sheet 0 downloads PDF
Siemens Desigo Fire Safety 252 504pt Remote Connectivity 0 downloads PDF
Siemens Desigo Fire Safety Compact Combining innovation & intelligibility in a flexible, cost-effective system 0 downloads PDF
Siemens Desigo Fire Safety Compact Simple migration strategies for maximum fire protection 0 downloads PDF
Siemens Desigo Fire Safety Desigo Voice Head on Door Open 0 downloads TIF
Siemens Desigo Fire Safety Fire terminal and equipment, data sheet 0 downloads PDF
Siemens Desigo Fire Safety Innovative Protection Modular 0 downloads PDF
Siemens Desigo Fire Safety Intelligent Voice Communication 0 downloads PDF
Siemens Desigo Fire Safety Modular - Siemens FireFinder XLS Driver Technical Specification Sheet 0 downloads PDF
Siemens Desigo Fire Safety Modular Enclosures and Equipment, Data Sheet 0 downloads PDF
Siemens Desigo Fire Safety Modular Planning Poster 0 downloads PDF
Siemens Desigo Fire Safety Modular The Evolution of FireFinder XLS 0 downloads PDF
Siemens Desigo Fire Safety Modular and Cerberus PRO Modular, Installation Manual for Zeus 7 0 Programming Tool 0 downloads PDF
Siemens Desigo Fire Safety Modular system overview, Data Sheet 0 downloads PDF
Siemens Desigo Fire Safety Planning Tool 0 downloads PDF
Siemens Desigo Fire Safety System A comprehensive fire-protection system (for Canada), Data Sheet 0 downloads PDF
Siemens Desigo Fire Safety System Fire-Alarm Enclosures and Equipment, Data Sheet 0 downloads PDF
Siemens Desigo Fire Safety Voice Back Cabinet angle 0 downloads TIF
Siemens Desigo Fire Safety, intelligent detectors for complete safety 0 downloads PDF
Siemens Desigo Fire Safety, new dimension in fire protection 0 downloads PDF
Siemens Desigo Infografic PORTRAIT 0 downloads PDF
Siemens Desigo Infografic breit 0 downloads PDF
Siemens Desigo Intelligent Voice Communication (system overview), Data sheet 0 downloads PDF
Siemens Desigo Marine Fire and Detection Equipment, Data Sheet 0 downloads PDF
Siemens Desigo Mass Notification Brochure US 0 downloads PDF
Siemens Desigo Mass Notification – brochure 0 downloads PDF
Siemens Desigo Optic Project Haystack Brochure 0 downloads PDF
Siemens Desigo Optic for Commercial Buildings Brochure 0 downloads PDF
Siemens Desigo Optic for School Districts Brochure 0 downloads PDF
Siemens Desigo Posters 0 downloads PDF
Siemens Desigo Room Automation Station P1 DXR DXR2 T12P Submittal Sheet 0 downloads PDF
Siemens Desigo Room Automation Station P1 DXR DXR2 T18P Submittal Sheet 0 downloads PDF
Siemens Desigo System Catalogue 2019 0 downloads PDF
Siemens Desigo Tabular Annunciators Series, Data sheet 0 downloads PDF
Siemens DesigoCC Cerberus DMS Sales Policy, Presentation 0 downloads PDF
Siemens DesigoCC1 0 Man-with-Display jpg250x250 0 downloads JPG
Siemens Desigo™ CC Getting Started 0 downloads PDF
Siemens Desigo™ CC User Guide 0 downloads PDF
Siemens Desigo™ CC User Guide Ver 2 1 0 downloads PDF
Siemens Din Rail for FHB2001-U1 FHB2001-R1 and FHB2002-U1 FHB2002-R1 Backboxes, Installation Instructions 0 downloads PDF
Siemens Disposal 0 downloads PDF
Siemens Driver installer and uninstaller for TUSB3410 based devices Installation und Deinstallation des Treibers für Geräte auf Basis TUSB3410 0 downloads PDF
Siemens Dual Duct Variable Volume with Dedicated Ventilation Duct, Two Inlet Sensors, DCV and Hot Water Heat with Supply Temp Control (Template 14064) 0 downloads PDF
Siemens Dual Duct Variable Volume with Two Inlet Sensors, (DCV), Modulating Electric (or HW) Heat and Hot Water (or Electric) Radiator - Templates 14069, 14169, 14369 0 downloads PDF
Siemens Dual Duct Variable Volume with Two Inlet Sensors, 2-Stage Electric Heat, Chilled Ceiling and Hot Water Radiator (Template 14269) 0 downloads PDF
Siemens EA Series System 3 Enclosures, Data Sheet 0 downloads PDF
Siemens EAD-3 Weatherproof Air Duct Detector Enclosure, Installation Instructions 0 downloads PDF
Siemens EAP-Control Strategies per ASHRAE 90 1-2010 and 2013, Brochure 0 downloads PDF
Siemens EAP-Smart Grid Preparation, abstract, Brochure 0 downloads PDF
Siemens EAP-Specify VFDs for HVAC Appl, abstract, Brochure 0 downloads PDF
Siemens EAP-Valve-Actuator Basics, abstract, Brochure 0 downloads PDF
Siemens EB-32, EB-33 and EB-35 System 3 Control Panel Enclosures, Installation and Power Limited Wiring Instructions 0 downloads PDF
Siemens EBA2001-U1 R1 (kits) and EBA2004-A1(Main Board)- Cerberus PRO Intelligent Voice Communication, Data Sheet 0 downloads PDF
Siemens EBA2001-U1 R1 (kits) and EBA2004-A1(Main Board)- Desigo Intelligent Voice Communication, Data Sheet 0 downloads PDF
Siemens EBA2004-A1 Booster Amp Mainb (100W) 0 downloads PDF
Siemens EBA2004-A1 Booster amplifier main board (100 W) 0 downloads PDF
Siemens ED-32, ED-33(R) and ED-35(R) System 3 Control Panel Doors, Installation Instructions 0 downloads PDF
Siemens EDE Files EVF4U20E065 0 downloads ZIP
Siemens EDE Files EVF4U20E080 0 downloads ZIP
Siemens EDE Files EVF4U20E100 0 downloads ZIP
Siemens EDE Files EVF4U20E125 0 downloads ZIP
Siemens EDE Files EVG4U10E015 0 downloads ZIP
Siemens EDE Files EVG4U10E020 0 downloads ZIP
Siemens EDE Files EVG4U10E025 0 downloads ZIP
Siemens EDE Files EVG4U10E032 0 downloads ZIP
Siemens EDE Files EVG4U10E040 0 downloads ZIP
Siemens EDE Files EVG4U10E050 0 downloads ZIP
Siemens EK-32, EK-33 and EK-35 Rail Kits for System 3 Enclosures, Installation Instructions 0 downloads PDF
Siemens EL-31 End of Line Device, Installation Instructions 0 downloads PDF
Siemens EL-410D Audio Amplifier, Installation Instructions 0 downloads PDF
Siemens EN-PAD EN-PADR Enclosures, Installation and Power Limited Wiring Instructions 0 downloads PDF
Siemens EN-SX(R) Enclosure for the SXL-EX Control Panel, Installation and Power Limited Wiring Instructions 0 downloads PDF
Siemens ENCL-01 Enclosure, Installation Instructions 0 downloads PDF
Siemens Effective Planning for Fire Life Safety Upgrades 0 downloads PDF
Siemens EngineeringAdvantage BAS Critical Role within LEED, Brochure 0 downloads PDF
Siemens EngineeringAdvantage BAS Role in Bldg Commissioning, Brochure 0 downloads PDF
Siemens EngineeringAdvantage Building Automation Systems Basics, Brochure 0 downloads PDF
Siemens EngineeringAdvantage Cyber Secfurity for BAS, Brochure 0 downloads PDF
Siemens EngineeringAdvantage Demand Controlled Ventilation, Brochure 0 downloads PDF
Siemens EngineeringAdvantage Total Room Automation for BAS, Brochure 0 downloads PDF
Siemens Environmental Product Declaration - FDA221 FDA241 FDA421 0 downloads PDF
Siemens Environmental Product Declaration - FDAZ292 0 downloads PDF
Siemens Environmental Product Declaration - FN2013-U1, FN2014-U1 0 downloads PDF
Siemens Environmental Product Declaration - VN2002-A1, VN2003-A1 0 downloads PDF
Siemens Environmental Product Declarations 0 downloads PDF
Siemens F5000 Projected Beam Smoke Detector, Data Sheet 0 downloads PDF
Siemens FB-300, FB-301 and FC-300 Backboxes and Door, Installation Instructions 0 downloads PDF
Siemens FB-Series, FC-Series, FJ-Series, FTS-Series and PCL Series - Remote Firefighters' Telephones and Accessories , Data Sheet 0 downloads PDF
Siemens FB-Series, FC-Series, FJ-Series, FTS-Series and PCL Series - Remote Firefighters' Telephones and Accessories, Data Sheet 0 downloads PDF
Siemens FC2005 FC901 Enclosure installation instruction 0 downloads PDF
Siemens FC2005 FC901 Installation Instruction 0 downloads PDF
Siemens FC2005 Combining innovation and power in a flexible, cost-effective system 0 downloads PDF
Siemens FC2005 Desigo 50-Point Addressable Fire Alarm Control Panel, Data Sheet 0 downloads PDF
Siemens FC2005 Installation, Operation and Maintenance Manual 0 downloads PDF
Siemens FC2005 Operation instruction (short) 0 downloads PDF
Siemens FC2005 fire control panel 0 downloads PDF
Siemens FC2025 FC2050 FT2050 Fire Alarm Control Panel, Installation Instructions 0 downloads PDF
Siemens FC2025 and FC2050 252-Point and 504-Point Addressable Fire Alarm Control Panel (for Canada), Data Sheet 0 downloads PDF
Siemens FC2025, FC2050 Desigo Addressable (FIRE-Only) Control Panel, Data Sheet 0 downloads PDF
Siemens FC360UL Cybersecurity guidelines 0 downloads PDF
Siemens FC901 FC2005 System installation instruction Wiring diagram 0 downloads PDF
Siemens FC901 Cerberus PRO 50-Point Addressable Fire Alarm Control Panel, Data Sheet 0 downloads PDF
Siemens FC901 fire control panel 0 downloads PDF
Siemens FC922 FC924 FT924 Fire Alarm Control Panel, Installation Instructions 0 downloads PDF
Siemens FC922, FC924 Cerberus PRO Addressable (FIRE-Only) Control Panel, Data Sheet 0 downloads PDF
Siemens FCA2012-U1 License key 0 downloads PDF
Siemens FCA2015-U1 Desigo Fire Safety DACT, Data Sheet 0 downloads PDF
Siemens FCA2015-U1 Digital Alarm Communicator Transmitter, Data Sheet 0 downloads PDF
Siemens FCA2015-U1 Serial Digital Alarm Communicator Transmitter (DACT), Installation Instructions 0 downloads PDF
Siemens FCA2016-U1 RS485 class A module (isolated), Installation Instructions 0 downloads PDF
Siemens FCA2018-U1 (with Model FCA2016-U1), Cerberus PRO Remote Peripheral Module (with RS-485), Data Sheet 0 downloads PDF
Siemens FCA2018-U1 (with Model FCA2016-U1), Desigo Remote Peripheral Module (with RS-485), Data Sheet 0 downloads PDF
Siemens FCA2018-U1 Remote Peripheral Module, Installation Instructions 0 downloads PDF
Siemens FCA2031-A1 - Environmental Product Declaration 0 downloads PDF
Siemens FCA2031-A1 Connection module MoNet 0 downloads PDF
Siemens FCA2032-U1 Battery Disconnect Module, Data Sheet 0 downloads PDF
Siemens FCA2032-U1 Battery Disconnect Module, Installation Instructions 0 downloads PDF
Siemens FCI2011-U1 0 downloads TIF
Siemens FCI2011-U1 NAC Expansion Module, Data Sheet 0 downloads PDF
Siemens FCI2011-U1 NAC Expansion Module, Data Sheet Cerberus Pro 0 downloads PDF
Siemens FCI2011-U1 NAC module (1A 2B) 0 downloads PDF
Siemens FCI2016-U1 FCI2017-U1 System Periphery Boards, Data Sheet 0 downloads PDF
Siemens FCI2016-U1 and FCI2017-U1 System Periphery Boards, Data Sheet 0 downloads PDF
Siemens FCI2020-U1 Leased line city tie module, Mounting Installation 0 downloads PDF
Siemens FCI2020-U1 Leased-Line City-Tie Module (for Canada) Cerberus Pro, Data Sheet 0 downloads PDF
Siemens FCI2020-U1 Leased-Line City-Tie Module (for Canada), Data Sheet 0 downloads PDF
Siemens FCI2020-U1 Leased-Line City-Tie Module, Data Sheet 0 downloads PDF
Siemens FCI2020-U1 Leased-Line, City-Tie Module, Data Sheet 0 downloads PDF
Siemens FCL-MXLPLATE Adapter Plate to mount the FCL2004 Loop Driver, Installation Instructions 0 downloads PDF
Siemens FCL-MXLPLATE Adapter plate for FCL2004, Environmental Product Declaration 0 downloads PDF
Siemens FCL2004-U1 MIQ Migration Module, Environmental Product Declaration 0 downloads PDF
Siemens FCL2004-U1 MXL Device Interface Module, Installation Instructions 0 downloads PDF
Siemens FCL2004-U1MIQ Migration Module 0 downloads JPG
Siemens FCL2004-U1and FHA-MIQKIT- Desigo Fire Safety Compact Systems Migration Hardware Kit 0 downloads PDF
Siemens FCM-6 LCM-8 SCM-8 Control Module LED Control Module Switch Control Module, Installation Instructions 0 downloads PDF
Siemens FCM-6, LCM-8, SCM-8 (for FireFinder) Control Modules, Data Sheet 0 downloads PDF
Siemens FCM-6, LCM-8, SCM-8 Cerberus PRO Modular Control Modules, data sheet 0 downloads PDF
Siemens FCM-6, LCM-8, SCM-8 Desigo Modular Control Modules, data sheet 0 downloads PDF
Siemens FCM-6S LCM-8S SCM-8S Control Module LED Control Module Switch Control Module CAN Sounder Board, Installation Instructions 0 downloads PDF
Siemens FCM2018-U2 FCM2019-U2 Desigo Operating Units, Data Sheet 0 downloads PDF
Siemens FCM2018-U2 FCM2035-U2 Operating Interface Units (for Canada), Data Sheet 0 downloads PDF
Siemens FCM2018-U3 0 downloads JPG
Siemens FCM2018-U3, FCM2019-U3 Operating Interface Units, Data Sheet 0 downloads PDF
Siemens FCM2018-U3, FCM2035-U3 Operating Interface Units (for Canada), Data Sheet 0 downloads PDF
Siemens FCM2023-U2 and FCM2022-U2 LED Blank Option Modules, Data Sheet 0 downloads PDF
Siemens FCM2023-U3 FCM2034-U3 and FCM2022-U3 LED Blank Option Modules, Data Sheet 0 downloads PDF
Siemens FCM2034-U2 and FCM2022-U2 LED Blank Option Modules (for Canada), Data Sheet 0 downloads PDF
Siemens FCM2034-U3 and FCM2022-U3 LED Blank Option Modules (for Canada), Data Sheet 0 downloads PDF
Siemens FCM2041-U2 Desigo Modular Operator Interface, Data Sheet 0 downloads PDF
Siemens FCM2041-U2 Operator Interface, Environmental Product Declaration 0 downloads PDF
Siemens FCM2041-U2 Operator Interface, Installation Instructions 0 downloads PDF
Siemens FCM2041-U2 Single Sheet Reference 0 downloads PDF
Siemens FCM2041-U3 Cerberus PRO Modular Operator Interface, Data Sheet 0 downloads PDF
Siemens FCM2041-U3 Cerberus PRO Operator Interface Installation Instructions (for Cerberus PRO Modular) 0 downloads PDF
Siemens FCM2041-U3 Environmental Product Declaration 0 downloads PDF
Siemens FCM2041-U3 Single Sheet Reference 0 downloads PDF
Siemens FCM20xx-U2, FCM20xx-U3 Operating unit, Operating unit (+ LED), Installation Instructions 0 downloads PDF
Siemens FCM20xx-U2, FCM20xx-U3 Option module (blank), Option module (LED), Installation Instructions 0 downloads PDF
Siemens FDA241- Aspirated Li-Ion OGP Detector 0 downloads PDF
Siemens FDBZ-WT Weatherproof Enclosure for Air Duct Housings, Installation Instructions 0 downloads PDF
Siemens FDBZ492, FDBZ492-HR, FDBZ492-R and FDBZ492-RP (with FDBZ-WT and FDBZ-RTL), Data Sheet 0 downloads PDF
Siemens FDBZ492, FDBZ492-HR, FDBZ492-R and FDBZ492-RP {with FDBZ-WT and FDBZ-RTL}, Data Sheet 0 downloads PDF
Siemens FDBZ492, FDBZ492-R and FDBZ492-HR Air Duct Monitoring Housings, Installation Instructions 0 downloads PDF
Siemens FDBZ492-PR Global Air Duct Monitoring Housing, Installation Instructions 0 downloads PDF
Siemens FDBZ492-RTL Remote Alarm Indicator, Installation Instructions 0 downloads PDF
Siemens FDCIO422 4-Input 4-Output Interface Module (for Canada), Data Sheet 0 downloads PDF
Siemens FDCIO422 4-Input 4-Output Interface Module, Intelligent Peripheral Devices (for Canada), Data Sheet 0 downloads PDF
Siemens FDCIO422 Addressable Input Output module, Installation Instructions 0 downloads PDF
Siemens FDCIO422 Cerberus PRO 4-In 4-Out Interface Module, Data Sheet 0 downloads PDF
Siemens FDCIO422 Desigo Fire Safety 4-In 4-Out Interface Module, Data Sheet 0 downloads PDF
Siemens FDCIO422 Environmental Product Declaration 0 downloads PDF
Siemens FDO421 Intelligent, Addressable Photoelectric Smoke Detector, Data Sheet 0 downloads PDF
Siemens FDO421 Photoelectric Detector, Installation Instructions 0 downloads PDF
Siemens FDOOT441 Multi-Criteria Fire Detector [with ASAtechnology], Data Sheet 0 downloads PDF
Siemens FDOOT441 Multi-Criteria Fire Detector, Installation Instructions 0 downloads PDF
Siemens FDOOTC441 Multi-Criteria Fire CO Detector [with ASAtechnology], Data Sheet 0 downloads PDF
Siemens FDOOTC441 Multi-Criteria Fire CO Detector, Installation Instructions 0 downloads PDF
Siemens FDOT421 Intelligent, Addressable Multi-Criteria Fire Detector, Data Sheet 0 downloads PDF
Siemens FDOT421 Multi-Criteria Smoke Detector, Installation Instructions 0 downloads PDF
Siemens FDT421 Heat Detector, Installation Instructions 0 downloads PDF
Siemens FDT421 Intelligent, Addressable Thermal (Heat) Fire Detector, Data Sheet 0 downloads PDF
Siemens FH2016 Enclosure (EBA2001) 0 downloads PDF
Siemens FH2071-UM Enclosure, Installation Instructions 0 downloads PDF
Siemens FH2072-UA 0 downloads JPG
Siemens FH2072-UA Battery housing, Installation Instructions 0 downloads PDF
Siemens FH2072-UA Environmental Product Declarations 0 downloads PDF
Siemens FHA-MIQKIT-01 0 downloads TIF
Siemens FHA-MIQKIT-02 0 downloads TIF
Siemens FHA-MIQKIT-03 Environmental Product Declaration 0 downloads PDF
Siemens FHA-MIQKIT-04 FHA-MIQKIT-05, Installation Instructions 0 downloads PDF
Siemens FHA-MIQKIT-04 MIQ MIGRATION KIT-BLK, Environmental Product Declaration 0 downloads PDF
Siemens FHA2032-U1 Battery Bracket for FHB2002-U1 FHB2002-R1 Backbox, Installation Instructions 0 downloads PDF
Siemens FHA2035-U1 FHA2035-R1, FHA2036-U1 FHA2036-R1 Trim Kits, Installation Instructions 0 downloads PDF
Siemens FHA2041-R1 Enclosure Cover for Model FHB2005-R1 Backboxes, Installation Instructions 0 downloads PDF
Siemens FHA2042-U1 Battery Bracket for the FHB2005-U1 R1 Backbox, Installation Instructions 0 downloads PDF
Siemens FHA2043-U1 FHA2043-R1 Trim Kit for Model FHB2005-U1 R1 Backboxes, Installation Instructions 0 downloads PDF
Siemens FHA2044-U1 Battery bracket (EBA2001) 0 downloads PDF
Siemens FHA2045-U1 Shield connec kit (EBA2001) 0 downloads PDF
Siemens FHA2054-U1 Audio transformer kit 0 downloads PDF
Siemens FHA2056-R1, FS250, MPC Migration Kit, Environmental Declaration 0 downloads PDF
Siemens FHA2056-U1 FHA2056-R1 FS250 MPC Mechanical Migration Kit, Installation Instructions 0 downloads PDF
Siemens FHA2056-U1 FS250 MPC Migration Kit, Environmental Product Declaration 0 downloads PDF
Siemens FHA2056-U1, FHA2056-R1 Cerberus PRO (for Canada) Migration Hardware Kit, data sheet 0 downloads PDF
Siemens FHA2056-U1, FHA2056-R1 Cerberus PRO Migration Hardware Kit, data sheet 0 downloads PDF
Siemens FHA2056-U1, FHA2056-R1 Desigo (for Canada) Migration Hardware Kit, data sheet 0 downloads PDF
Siemens FHA2056-U1, FHA2056-R1 Desigo Migration Hardware Kit, data sheet 0 downloads PDF
Siemens FHB2005-U1 FHB2005-R1 3 HU Black Red Backbox, Installation Instructions 0 downloads PDF
Siemens FHD2007-U2 FHD2007-R2 3 HU Black Red Outer Door, Installation Instructions 0 downloads PDF
Siemens FHD2007-U3 FHD2007-R3 3 HU Black Red Outer Door, Installation Instructions 0 downloads PDF
Siemens FHD2009-U1 R1 Black Red Blank Plate, Installation Instructions 0 downloads PDF
Siemens FHD2012-U1 Desigo Inner Door [used with the Remote Display Terminal] (for Canada), Data Sheet 0 downloads PDF
Siemens FHD2012-U1 Inner Door [used with the Remote Display Terminal] (for Canada), Data Sheet 0 downloads PDF
Siemens FHD2012-U1 Inner Door for Remote Terminal Display Module, Installation Instructions 0 downloads PDF
Siemens FJ-303, FJ-304 and FT Telephone Jack and FireFighters’ Phone Stations, Installation Instructions 0 downloads PDF
Siemens FLASH-UK Upgrade Kit, Installation Instructions 0 downloads PDF
Siemens FM Approval Report for the 3010 2014 re-exam test program for XLS XLSV, Cerberus Pro Modular and Desigo Fire safety Modular systems 0 downloads PDF
Siemens FMT (for FireFinder) Firefighters’ Master Telephone, Data Sheet 0 downloads PDF
Siemens FMT Cerberus PRO Modular Fireman's Telephone, Data Sheet 0 downloads PDF
Siemens FMT Desigo Fire Safety Modular Fireman's Telephone, Data Sheet 0 downloads PDF
Siemens FMT Fire Master Telephone, Environmental Product Declaration 0 downloads PDF
Siemens FMT Fireman’s Master Telephone, Installation Instructions 0 downloads PDF
Siemens FMT-A-ADPT Class A Riser Module for the FMT, Installation Instructions 0 downloads PDF
Siemens FN2001-U1 C-WEB Network Module, Data Sheet 0 downloads PDF
Siemens FN2001-U1 Network module (SAFEDLINK), Installation Instructions 0 downloads PDF
Siemens FN2001-U1 SAFEDLINK FCnet Network Module 0 downloads PDF
Siemens FN2006-U1 Fiber network module (SM), FN2007-U1 Fiber network module (MM) 0 downloads PDF
Siemens FN2006-U1 and FN2007-U1 Cerberus PRO Single-Mode Multi-Mode Fiber-Optic Module, Data Sheet 0 downloads PDF
Siemens FN2006-U1 and FN2007-U1 Desigo Single-Mode Multi-Mode Fiber-Optic Module, Data Sheet 0 downloads PDF
Siemens FN2012-A1 - Environmental Product Declaration 0 downloads PDF
Siemens FN2012-A1 Ethernet switch (modular) 0 downloads PDF
Siemens FN2013-U1 FN2014-U1 Fiber network module (SM MM) 0 downloads PDF
Siemens FN2013-U1 FN2014-U1 fiber-optic interface modules, Data Sheet 0 downloads PDF
Siemens FP-11 FPT-11 Intelligent Fire Detector, Installation Instructions 0 downloads PDF
Siemens FP-11 Intelligent Fire Detector, Data Sheet 0 downloads PDF
Siemens FP2011-U1 FP2012-U1 170-Watt and 300-Watt Power Supplies - Desigo (for Canada), Data Sheet 0 downloads PDF
Siemens FP2011-U1 FP2012-U1 170-Watt and 300-Watt Power Supplies - Desigo, Data Sheet 0 downloads PDF
Siemens FP2011-U1 6 5 Amp Power Supply Module, Installation Instructions 0 downloads PDF
Siemens FP2011-U1, FP2012-U1 170-Watt and 300-Watt Power Supplies - Cerberus PRO (for Canada), Data Sheet 0 downloads PDF
Siemens FP2011-U1, FP2012-U1 170-Watt and 300-Watt Power Supplies - Cerberus PRO, Data Sheet 0 downloads PDF
Siemens FP2012-U1 300W Power Supply Module, Installation Instructions 0 downloads PDF
Siemens FP2013-U1 600W Power Supply Set, Installation Instructions 0 downloads PDF
Siemens FPI-32 Programmer Tester, Operations Manual 0 downloads PDF
Siemens FPI-UK11 Upgrade Kit, Installation Instructions 0 downloads PDF
Siemens FPT-11 Intelligent Thermal Detector, Data Sheet 0 downloads PDF
Siemens FS Fokus Markt Schools final 0 downloads PDF
Siemens FS-RD-SB FS-RD-SB-R Surface Box, Installation Instructions 0 downloads PDF
Siemens FS-RD2 FS-RD2-R Remote LCD Annunciator, Installation Instructions 0 downloads PDF
Siemens FSD901-U2 FSD901-R2 FSD901-U3 FSD901-R3 Floor Repeater Display, Product Manual 0 downloads PDF
Siemens FSD901-U2, FSD901-R2, FTH2073-UA Remote Annunciator for the 50-Point Addressable System, Data Sheet 0 downloads PDF
Siemens FSD901-U3, FSD901-R3 Remote Annunciator for the 50-Point Addressable System, Data Sheet 0 downloads PDF
Siemens FT FTH annunciator Series, Environmental Product Declaration 0 downloads PDF
Siemens FT2003 Cerberus PRO Graphics Input Output Driver, Data Sheet 0 downloads PDF
Siemens FT2003 Desigo Graphics Input Output Driver, Data Sheet 0 downloads PDF
Siemens FT2003-U1 Graphic I O driver 0 downloads PDF
Siemens FT2007 LED annunciator driver 0 downloads PDF
Siemens FT2007 LED annunciator driver Installation Instruction 0 downloads PDF
Siemens FT2007-U1 Desigo LED Annunciator Driver, Data sheet 0 downloads PDF
Siemens FT2008 FT2009 FT2018 FT2019 LED Annunciator-16 Zone, Product Manual 0 downloads PDF
Siemens FT2008-U1 FT2008-R1 FT2009-U1 FT2009-R1 LED annunciator, Installation Instruction 0 downloads PDF
Siemens FT2008-U1 FT2008-R1 LED annunciator, Environmental Product Declaration 0 downloads PDF
Siemens FT2009-U1 FT2009-R1 LED Annunciator-32 Zone, Product Manual 0 downloads PDF
Siemens FT2009-U1 FT2009-R1 LED annunciator, Environmental Product Declaration 0 downloads PDF
Siemens FT2014, FT2015 (with Model FCA2016-U1), Cerberus PRO Remote Display Terminals (with RS-485), Data Sheet 0 downloads PDF
Siemens FT2014, FT2015 (with Model FCA2016-U1), Desigo Remote Display Terminals (with RS-485), Data Sheet 0 downloads PDF
Siemens FT2014-xx, FT2015-xx Remote display, Remote terminal 0 downloads PDF
Siemens FT2018-U1 FT2018-R1 FT2019-U1 FT2019-R1 Installation Instructions 0 downloads PDF
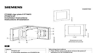
Siemens FTH073-VP view plate 0 downloads PDF
Siemens FTH2073-UA annunciator enclosure Installation Instructions 0 downloads PDF
Siemens FTI2001-A1 0 downloads TIF
Siemens FTI2001-A1 Fire terminal board, Installation Instruction 0 downloads PDF
Siemens FTI2001-U1 Environmental Product Declaration 0 downloads PDF
Siemens FTS Series FireFighters’ Telephone Stations, Installation Instructions 0 downloads PDF
Siemens FX901-S1 installation instruction 0 downloads PDF
Siemens FXS901 Tool for FC2005 FC901, User Manual 0 downloads PDF
Siemens Fault Detection and Diagnostics Configuration for DXR 0 downloads PDF
Siemens Feature set for Desigo CC Connect 0 downloads JPG
Siemens Financing Brochure for Customers 0 downloads PDF
Siemens Financing Brochure for Partners (Value and Products) 0 downloads PDF
Siemens Fire Life Safety, Customer Choice 0 downloads PDF
Siemens Fire safety focus market schools 0 downloads PPTX
Siemens FireFinder Network Command Center Graphics Operation, Installation, and Maintenance Manual 0 downloads PDF
Siemens FireFinder Network Command Center Graphics, Software Installation Manual 0 downloads PDF
Siemens FireFinder XLS Cerberus PRO Planning Tool 0 downloads PDF
Siemens FireFinder XLS - Speed, power, flexibility – everything a facility needs for today and tomorrow 0 downloads PDF
Siemens FireFinder XLS Advanced Fire Safety System, Data Sheet 0 downloads PDF
Siemens FireFinder XLS Device Loop Card Model DLC 0 downloads PDF
Siemens FireFinder XLS Fire Alarm Enclosures & Equipment, Data Sheet 0 downloads PDF
Siemens FireFinder XLS Operation & Installation Manual 0 downloads PDF
Siemens FireFinder XLS PMI Operation Manual 0 downloads PDF
Siemens FireFinder XLS Smoke Control 0 downloads PDF
Siemens FireFinder XLS Zeus v3 0 Programming Tool Quick Start Guide 0 downloads PDF
Siemens FireFinder XLS Zeus v4 0 Programming Tool Installation Manual 0 downloads PDF
Siemens FireFinder XLS Zeus v4 0 Programming Tool Quick Start Guide 0 downloads PDF
Siemens FireFinder XLS, Installation Instruction Index 0 downloads PDF
Siemens FireFinder XLSV Digital Emergency Voice Alarm Communication System, Data Sheet 0 downloads PDF
Siemens FireFinder-XLS Control Panel Installation, Operation and Maintenance Manual 0 downloads PDF
Siemens FirePrint Detectors, the intelligence to separate an emergency from everything else, Brochure 0 downloads PDF
Siemens FireSeeker Fire Alarm Control Panel Model FS-250 Programming Manual 0 downloads PDF
Siemens Flyer Desigo Fire UK HQ Version 0 downloads PDF
Siemens Fraunhofer CSE Boston USA – reference flyer 0 downloads PDF
Siemens Further your success, Become a Siemens Solution Partner, Brochure 0 downloads PDF
Siemens GCM-8 Graphics Control Module, Installation Instructions 0 downloads PDF
Siemens GCNET Installation, Operation and Maintenance Manual 0 downloads PDF
Siemens GPMI-UK Upgrade Kit For Rev 5 Standalone XLS Node PMIs, Installation Instructions 0 downloads PDF
Siemens GPMI-UK Upgrade Kit For XLS Node GPMI-2, Installation Instructions 0 downloads PDF
Siemens Global PMI Global Person Machine Interface Application Guide, Installation Instructions 0 downloads PDF
Siemens HCP Intelligent Control Point, Installation Instructions 0 downloads PDF
Siemens HCP, HCP-Z Intelligent Control Point Device, data sheet 0 downloads PDF
Siemens HCP-Z Intelligent Control Point, Installation Instructions 0 downloads PDF
Siemens HFP-11 HFPT-11 FirePrint Detector FirePrint Thermal Detector, Installation Instructions 0 downloads PDF
Siemens HI121 Conventional Detection Devices, Thermal Heat Detector, Data Sheet 0 downloads PDF
Siemens HI121 Thermal Detector, Installation Instructions 0 downloads PDF
Siemens HI921 Heat Detector, Installation Instructions 0 downloads PDF
Siemens HI921 Intelligent, Addressable Thermal (Heat) Detector, Data Sheet 0 downloads PDF
Siemens HLIM Line Isolator Module, Data Sheet 0 downloads PDF
Siemens HLIM Loop Isolator Module, Installation Instructions 0 downloads PDF
Siemens HLIM-Z Loop Isolator Module, Installation Instructions 0 downloads PDF
Siemens HMS-2S HMS-SA Dual Stage Manual Pull Station Single Stage Manual Pull Station with Auxiliary Contacts, Installation Instructions 0 downloads PDF
Siemens HMS-2S HMS-SA Intelligent Initiating Devices, Data Sheet 0 downloads PDF
Siemens HMS-2S and HMS-SA (forCanada, ULC) Intelligent Initiating Devices, Data Sheet 0 downloads PDF
Siemens HMS-D, HMS-DZ HMS-S, HMS-SZ HMS-Series Intelligent Initiating Devices, Data Sheet 0 downloads PDF
Siemens HMS-DE HMS-DP Environmental Product Declaration 0 downloads PDF
Siemens HMS-M Intelligent Metal Manual Fire Alarm Boxes, Data Sheet 0 downloads PDF
Siemens HMS-M Manual Pull Station with Metal Housing, Installation Instructions 0 downloads PDF
Siemens HMS-S HMS-D Single Dual Action Manual Pull Station, Installation Instructions 0 downloads PDF
Siemens HMS-SE HMS-SP Environmental Product Declaration 0 downloads PDF
Siemens HMS-SZ HMS-DZ Single Dual Action Manual Pull Station, Installation Instructions 0 downloads PDF
Siemens HS Notification Appliances Horn and Horn Strobe, Data Sheet 0 downloads PDF
Siemens HTRI Series Intelligent Initiating Devices, Data Sheet 0 downloads PDF
Siemens HTRI-M Addressable Interface Module, Installation Instructions 0 downloads PDF
Siemens HTRI-M, HTRI-MZ Intelligent Device Interface Module, Data Sheet 0 downloads PDF
Siemens HTRI-MZ Addressable Interface Module, Installation Instructions 0 downloads PDF
Siemens HTRI-S HTRI-D HTRI-R Addressable Switch Interface Modules, Installation Instructions 0 downloads PDF
Siemens HTRI-SZ HTRI-DZ HTRI-RZ Addressable Switch Interface Modules, Installation Instructions 0 downloads PDF
Siemens HTSW-1 System Tamper Switch, Installation Instructions 0 downloads PDF
Siemens HUB-4 Communication Card for NCC WAN PMI-2 Concentrator, Installation Instructions 0 downloads PDF
Siemens HZM, HZM-Z H-series remote Conventional Zone Module, Data Sheet 0 downloads PDF
Siemens HZM-Z Remote Conventional Zone Module, Installation Instruction 0 downloads PDF
Siemens ICP-B6 Intelligent Control Point, Installation Instructions 0 downloads PDF
Siemens IEC-1 Intelligent Environmental Compensation Module, Installation Instructions 0 downloads PDF
Siemens II BTD - USP 795,797,and 800 Pharmacy Solution Set Matrix 0 downloads PDF
Siemens IIC Desigo Modular Interface Isolation Card, Data Sheet 0 downloads PDF
Siemens IIC Interface Isolation Card for Cerberus PRO Modular, Data Sheet 0 downloads PDF
Siemens IIC Interface Isolation Card for FireFinder panels, Data Sheet 0 downloads PDF
Siemens IIC Interface Isolation Card, Installation Instructions 0 downloads PDF
Siemens ILED-HC ILED-HW Intelligent Remote Lamps, Installation Instructions 0 downloads PDF
Siemens ILED-HC, ILED-HW H-series Intelligent Remote Alarm Lamps, Data Sheet 0 downloads PDF
Siemens ILED-SC ILED-SW Intelligent Remote Lamps, Installation Instructions 0 downloads PDF
Siemens ILED-X Series Intelligent Remote Alarm Lamps, Data Sheet 0 downloads PDF
Siemens ILED-XC EPD 0 downloads PDF
Siemens ILED-XC, ILED-XW Intelligent Remote Lamps with Dual Isolators, Installtion Instructions 0 downloads PDF
Siemens ILED-XW EPD 0 downloads PDF
Siemens ILI-1, ILI-1H, ILI-1A, and ILI-1AH Smoke and Fire Detector, Installation Instructions 0 downloads PDF
Siemens ILP-1 ILPT-1 Photo Detector, Installation Instructions 0 downloads PDF
Siemens IQ-9-UK KIT Upgrade Kit, Installation Instructions 0 downloads PDF
Siemens IQ-UK Kit, Installation Instructions 0 downloads PDF
Siemens Inner Doors for FHB2001 and FHB2002 Backboxes, Installation Instructions 0 downloads PDF
Siemens Installation and Wiring Instructions Model FS-MSM 0 downloads PDF
Siemens Integrated Building Solutions, Poster 0 downloads PDF
Siemens Ionization and Photoelectric Detectors Air Duct Housings, Data Sheet 0 downloads PDF
Siemens K-CBL Cerberus PRO Modular printer cable for system-event-history printer, data sheet 0 downloads PDF
Siemens K-CBL Desigo Modular printer cable for system-event-history printer, data sheet 0 downloads PDF
Siemens K-CBL FireFinder printer cable for system-event-history printer, data sheet 0 downloads PDF
Siemens K-CBL Interface cable for use with Keltron 90 Series Miniprinter 0 downloads PDF
Siemens K-CBL Keltron Printer to XLS PMI Cable, Environmental Product Declaration 0 downloads PDF
Siemens LED Series Remote Annunciators, Data Sheet 0 downloads PDF
Siemens LED-3 4 Remote Annunciator, Installation Instructions 0 downloads PDF
Siemens LEMD-M Emergency Message Display, Data Sheet 0 downloads PDF
Siemens LFS 520 Hz Horn Appliances, Data Sheet 0 downloads PDF
Siemens LIA LVM Interface Assembly, Installation Instructions 0 downloads PDF
Siemens LIM-1 Line Isolator Module, Data Sheet 0 downloads PDF
Siemens LIM-1 Loop Isolator Module, Installation Instruction 0 downloads PDF
Siemens LIM-1 Loop Isolator Module, Installation Instructions 0 downloads PDF
Siemens LK-11 DB-11 Base Detector Lock, Installation Instructions 0 downloads PDF
Siemens LLM-1 Leased Line Module, Installation Instructions 0 downloads PDF
Siemens LPB Local Page Board, Installation Instructions 0 downloads PDF
Siemens LVM (for FireFinder) Live Voice Module, Data Sheet 0 downloads PDF
Siemens LVM Cerberus PRO Modular Live Voice Module, Data Sheet 0 downloads PDF
Siemens LVM Desigo Fire Safety Modular Live Voice Module, Data Sheet 0 downloads PDF
Siemens LVM Live Voice Module, Installation Instructions 0 downloads PDF
Siemens LXDACT-CBL Installation Instructions 0 downloads PDF
Siemens License key (S1) 0 downloads JPG
Siemens License key (S2) 0 downloads TIF
Siemens Lithium-ion Battery Storage Systems Brochure 0 downloads PDF
Siemens MBDC-6 MBDC-10 ST-MC-RETRO-R Notification Appliances, Data Sheet 0 downloads PDF
Siemens MBR-2 and MDR-2 MXL MXLV Backbox and Door, Installation Instructions 0 downloads PDF
Siemens MBR-MP MBR-3MP Mounting Plates, Installation Instructions 0 downloads PDF
Siemens MDACT Multi-Point Digital Alarm Communicator, Installation Instructions 0 downloads PDF
Siemens MEM-1 MXL Memory Expansion Module, Installation Instructions 0 downloads PDF
Siemens MG-7 0 downloads JPG
Siemens MH Notification Appliances Mini Horn Appliances, Data Sheet 0 downloads PDF
Siemens MH-5 MS-5 Manual Fire Alarm Stations, Installation Instructions 0 downloads PDF
Siemens MH115 Notification Appliances AC Horn, Data Sheet 0 downloads PDF
Siemens MHD-1, MHD-2, MHD-3, MHD-4, and MHD-5 Panel, Installation Instructions 0 downloads PDF
Siemens MHD-2W Dead Front Panel, Installation Instructions 0 downloads PDF
Siemens MID-16 Input Module, Installation Instructions 0 downloads PDF
Siemens MIQKIT-CBL-01 Bundled connector cable 0 downloads JPG
Siemens MIQKIT-CBL-01 Environmental Product Declaration 0 downloads PDF
Siemens MIQKIT-CBL-02 Environmental Product Declaration 0 downloads PDF
Siemens MKB-1 Annunciator Keypad Module, Installation Instructions 0 downloads PDF
Siemens MKB-2 Annunciator Keypad Module, Installation Instructions 0 downloads PDF
Siemens MKB-4 Annunciator Keypad Module, Installation Instructions 0 downloads PDF
Siemens MKB-5 MKB-5C Annunciator Keypad Module, Installation Instructions 0 downloads PDF
Siemens MLC (Legacy-panel) Line Card for Desigo Modular systems, Data Sheet 0 downloads PDF
Siemens MLC (for FireFinder) Line Card, Data Sheet 0 downloads PDF
Siemens MLC MXL Line Card, Installation Instructions 0 downloads PDF
Siemens MLE-6 Installation and Power Limited Wiring Instructions 0 downloads PDF
Siemens MM-SX Meter Module, Installation Instructions 0 downloads PDF
Siemens MMB-3 Main Control Board, Installation Instructions 0 downloads PDF
Siemens MMB-3 TAPE KIT Insulating Tape for MMB-3, Installation Instructions 0 downloads PDF
Siemens MMB3-ALD-UK Upgrade Kit for ALD on MMB-3 Main Motherboard, Installation Instructions 0 downloads PDF
Siemens MME-3 (R) Enclosure, Installation and Power Limited Wiring Instructions 0 downloads PDF
Siemens MMM-1 Microphone Master Module, Installation Instructions 0 downloads PDF
Siemens MOD-16 Output Driver, Installation Instructions 0 downloads PDF
Siemens MOI-7 Annunciator Driver, Installation Instructions 0 downloads PDF
Siemens MOM-2 Network Option Module Card Cage, Data Sheet 0 downloads PDF
Siemens MOM-2 Optional Card Cage Module, Installation Instructions 0 downloads PDF
Siemens MOM-4 Optional Card Cage Module, Installation Instructions 0 downloads PDF
Siemens MOM2-XMP Mounting Plate, Installation Instructions 0 downloads PDF
Siemens MOSA Cerberus DMS Monitoring-Only Solution, Data Sheet 0 downloads PDF
Siemens MOSA Desigo Monitoring-Only Solution, Data Sheet 0 downloads PDF
Siemens MOSA XNET Monitoring Only Solution Assembly, Installation Instructions 0 downloads PDF
Siemens MPF-RK, MPR-RK, PTB-RK, BP-RK XLS Rack Mount Kits (RKs), Installation Instructions 0 downloads PDF
Siemens MPI-2 Mounting Plate, Installation Instructions 0 downloads PDF
Siemens MPS-12 Power Supply Module, Installation Instructions 0 downloads PDF
Siemens MPS-12-220 MPS-12-240 Power Supply Modules, Installation Instructions 0 downloads PDF
Siemens MPS-6 Power Supply Module, Installation Instructions 0 downloads PDF
Siemens MS TP BIM Data Sheet 0 downloads PDF
Siemens MS-151 MS-157 Manual Fire Alarm Stations, Installation Instructions 0 downloads PDF
Siemens MS-151 Single-Pole, Single-Throw Manual Fire Alarm Box, Data Sheet 0 downloads PDF
Siemens MS-51, MS-501 MS Series Manual Fire Alarm Box, Data Sheet 0 downloads PDF
Siemens MSI-10B 20B Manual Stations, Installation Instructions 0 downloads PDF
Siemens MSI-10B MSI-20B Intelligent Manual Fire Alarm Boxes, Data Sheet 0 downloads PDF
Siemens MSI-30B Manual Station Programming Instructions 0 downloads PDF
Siemens MSI-B6F Manual Fire Alarm Boxes, Data Sheet 0 downloads PDF
Siemens MSI-B6F Metal Manual Station, Installation Instructions 0 downloads PDF
Siemens MSM SERIES Metal Manual Fire Alarm Box, Data Sheet 0 downloads PDF
Siemens MSM-INST 0 downloads JPG
Siemens MSM-KD 0 downloads JPG
Siemens MSR-1 Rail Kit, Installation Instructions 0 downloads PDF
Siemens MSU-1K Kit, Installation Instructions 0 downloads PDF
Siemens MTE-2 Enclosure Assembly, Installation Instructions 0 downloads PDF
Siemens MTH Notification Appliances Multi-tone Horn and Horn Strobe Appliances, Data Sheet 0 downloads PDF
Siemens MTH-MC-R-AR and ST-MC-R-AR Agent-Release Signaling Appliances, Data Sheet 0 downloads PDF
Siemens MXL MXLV Upgrade Kit, Installation Instructions 0 downloads PDF
Siemens MXL & MXLV Operation & Installation Manual 0 downloads PDF
Siemens MXL Connections To SK5128 & SK5129 Communicators 0 downloads PDF
Siemens MXL Life Safety Systems, Brochure 0 downloads PDF
Siemens MXL Marine Fire Detection System Manual 0 downloads PDF
Siemens MXL Multi Line Keyboard Display Panel 0 downloads PDF
Siemens MXL Simple migration for maximum fire protection, Flyer 0 downloads PDF
Siemens MXL System Migration, Brochure 0 downloads PDF
Siemens MXL VDT Interface Operation & Installation Manual 0 downloads PDF
Siemens MXL to Cerberus PRO Compact Systems Migration Hardware Kit, Data Sheet 0 downloads PDF
Siemens MXL – Simplex Service Manual 0 downloads PDF
Siemens MXL-IQ Control Panel Operation, Installation, and Maintenance Manual 0 downloads PDF
Siemens MXL-IQ Operation & Installation Manual 0 downloads PDF
Siemens Medium and Large Enclosure Backboxes Installation Instructions 0 downloads PDF
Siemens Model CP2341 120 VAC Transient Protector (Optional).pdf 0 downloads PDF
Siemens Models AD-11P AD-11PR AD-11XPR Air Duct Monitoring Housings Installation Instructions 0 downloads PDF
Siemens Mounting Options, Mounting Matrixes for Notification Appliances, Data Sheet 0 downloads PDF
Siemens NCCW7I7 Network Command Center, Data Sheet 0 downloads PDF
Siemens NET-4 Communication Interface, Installation Instructions 0 downloads PDF
Siemens NET-7 Communication Interface, Installation Instructions 0 downloads PDF
Siemens NET-7M Communication Interface, Installation Instructions 0 downloads PDF
Siemens NH NS - NH Notification Appliances Horn and NS Horn Strobes, Data Sheet 0 downloads PDF
Siemens NIC-C (for FireFinder) Network Interface Card, Data Sheet 0 downloads PDF
Siemens NIC-C Cerberus PRO Network Interface Card, Data Sheet 0 downloads PDF
Siemens NIC-C Desigo Fire Safety Modular Network Interface Card, Data Sheet 0 downloads PDF
Siemens NIC-C Network Interface Card for NCCNT WAN, Installation Instructions 0 downloads PDF
Siemens NIC-C Network Interface Card, Installation Instructions 0 downloads PDF
Siemens NIM-1M Network Interface Modem Module, Installation Instructions 0 downloads PDF
Siemens NIM-1W NIM-1M MXL Long Distance Communication Bridge, Data Sheet 0 downloads PDF
Siemens NIM-1W Network Interface Module MXL Wide Area Network Application, Installation Instructions 0 downloads PDF
Siemens NIM-1W Network Interface Module, Installation Instructions 0 downloads PDF
Siemens NIM-2D-UK Upgrade Kit for MDACT Multi-Point Digital Alarm Communicator, Installation Instructions 0 downloads PDF
Siemens NRC Cerberus PRO Modular 2nd Generation Network Ring Card, Data Sheet 0 downloads PDF
Siemens NRC Desigo Modular 2nd Generation Network Ring Card, Data Sheet 0 downloads PDF
Siemens NRC Network Ring Card (2nd Gen ) for FireFinder panels, Data Sheet 0 downloads PDF
Siemens NRC Network Ring Card, Installation Instructions 0 downloads PDF
Siemens NRC-2 Network Ring Card, Environmental Product Declaration 0 downloads PDF
Siemens O'Hare Chicago USA – reference flyer 0 downloads PDF
Siemens OCC-1 Output Control Card, Installation Instructions 0 downloads PDF
Siemens OCM-16 (for FireFinder) Output Control Module, Data Sheet 0 downloads PDF
Siemens OCM-16 Cerberus PRO Modular Output Control Module, Data Sheet 0 downloads PDF
Siemens OCM-16 Desigo Modular Output Control Module, Data Sheet 0 downloads PDF
Siemens OCM-16 Output Control Module, Installation Instructions 0 downloads PDF
Siemens OCM-16RC Output Control Module Ribbon Cable, Installation Instructions 0 downloads PDF
Siemens OD-BP OD-BP-R and OD-GP OD-GP-R Blank Grill Plates, Installation Instructions 0 downloads PDF
Siemens OH121 Conventional Detection Devices, Photo Thermal Smoke Detector, Data Sheet 0 downloads PDF
Siemens OH921 Intelligent, Addressable Multi-Criteria Fire Detector, Data Sheet 0 downloads PDF
Siemens OH921 Multi-Criteria Smoke Detector, Installation Instructions 0 downloads PDF
Siemens OMM-1 Output Master Module, Installation Instructions 0 downloads PDF
Siemens OMM-2 Output Master Module, Installation Instructions 0 downloads PDF
Siemens OOH941 Multi-Criteria Fire Detector [with ASAtechnology] (for Canada), Data Sheet 0 downloads PDF
Siemens OOH941 Multi-Criteria Fire Detector [with ASAtechnology], Data Sheet 0 downloads PDF
Siemens OOH941 Multi-Criteria Fire Detector, Installation Instructions 0 downloads PDF
Siemens OOHC941 Multi-Criteria Fire CO Detector [with ASAtechnology], Data Sheet 0 downloads PDF
Siemens OOHC941 Multi-Criteria Fire CO Detector, Installation Instructions 0 downloads PDF
Siemens OP121 OH121 Photoelectric Smoke Detector and Photo Smoke Thermal Detector, Installation Instructions 0 downloads PDF
Siemens OP121 Conventional Detection Devices, Photoelectric Smoke Detector, Data Sheet 0 downloads PDF
Siemens OP921 Cerberus PRO Intelligent, Addressable Photoelectric Smoke Detector, Data Sheet 0 downloads PDF
Siemens OP921 Smoke Detector, Installation Instructions 0 downloads PDF
Siemens OPC DA Interface Specifications V4 1 Video 0 downloads PDF
Siemens OPC DA Specification V3 0 FS20 Modular 0 downloads PDF
Siemens OPC DA Specifications V4 0 DF8000 0 downloads PDF
Siemens OPC DA Specifications V4 0 MK7022 0 downloads PDF
Siemens OPC DA Specifications V4 0 NK823x 0 downloads PDF
Siemens OPC DA Specifications V4 1 SiPass 0 downloads PDF
Siemens OPC DA Specifications V4 1 Video 0 downloads PDF
Siemens OPC Interface Specifications Version 4 1 AlgoRex CS11 and FC700A 0 downloads PDF
Siemens OPC Interface Specifications Version 5 0 AlgoRex CS11 and FC700A 0 downloads PDF
Siemens OPC Interface Specifications Version 5 0 DF8000 system 0 downloads PDF
Siemens OPC Interface Specifications Version 5 0 FS20 Modular 0 downloads PDF
Siemens OPC Interface Specifications Version 5 0 Fire WAN 0 downloads PDF
Siemens OPC Interface Specifications Version 5 0 MK7022 0 downloads PDF
Siemens OPC Interface Specifications Version 5 0 MXL 0 downloads PDF
Siemens OPC Interface Specifications Version 5 0 NK823x 0 downloads PDF
Siemens OPC Interface Specifications Version 5 0 SPC 0 downloads PDF
Siemens OPC Interface Specifications Version 5 0 STT20 STT11 0 downloads PDF
Siemens OPC Interface Specifications Version 5 0 SiPass 0 downloads PDF
Siemens OPC Interface Specifications Version 5 0 Sintony SI400 0 downloads PDF
Siemens OPC Interface Specifications Version 5 0 XLS 0 downloads PDF
Siemens OPC Interface Specifications Version 5 1 AlgoRex CS11 and FC700A 0 downloads PDF
Siemens OPC Interface Specifications Version 5 1 DF8000 system 0 downloads PDF
Siemens OPC Interface Specifications Version 5 1 FS20 Modular 0 downloads PDF
Siemens OPC Interface Specifications Version 5 1 FS20EN 0 downloads PDF
Siemens OPC Interface Specifications Version 5 1 FS20GB 0 downloads PDF
Siemens OPC Interface Specifications Version 5 1 FS20UL 0 downloads PDF
Siemens OPC Interface Specifications Version 5 1 Fire WAN 0 downloads PDF
Siemens OPC Interface Specifications Version 5 1 MK7022 0 downloads PDF
Siemens OPC Interface Specifications Version 5 1 MXL 0 downloads PDF
Siemens OPC Interface Specifications Version 5 1 NK823x 0 downloads PDF
Siemens OPC Interface Specifications Version 5 1 SPC 0 downloads PDF
Siemens OPC Interface Specifications Version 5 1 STT20 STT11 0 downloads PDF
Siemens OPC Interface Specifications Version 5 1 SiPass 0 downloads PDF
Siemens OPC Interface Specifications Version 5 1 Sintony SI400 0 downloads PDF
Siemens OPC Interface Specifications Version 5 1 Video 0 downloads PDF
Siemens OPC Interface Specifications Version 5 1 XLS 0 downloads PDF
Siemens OPC Interface, FS20EN, Specifications, Version 4 0 0 downloads PDF
Siemens OPC Interface, FS20UL, Specifications, Version 4 0 0 downloads PDF
Siemens OPC Interface, MXL, Specifications, Version 4 0 0 downloads PDF
Siemens OPC Interface, SPC, Specifications, Version 4 0 0 downloads PDF
Siemens OPC Interface, STT20, Specifications, Version 4 0 0 downloads PDF
Siemens OPC Interface, XLS, Specifications, Version 4 0 0 downloads PDF
Siemens Open-Souerce Software (OSS) Licenses FDA221, FDA241 Aspirating Smoke Detector 0 downloads PDF
Siemens Open-Source Software (OSS) Licenses FDA241 FDA221 Aspirating Smoke Detector 0 downloads PDF
Siemens Outer Doors for FHB2001 and FHB2002 Backboxes, Clear Window for FHD2001, FHD2002 and FHD2003 Outer Doors, Installation Instructions 0 downloads PDF
Siemens P4AP PAD-4 ADAPTER PLATE, Environmental Product Declaration 0 downloads PDF
Siemens PAB-ENCL PAB-ENCL-R and PAB2-ENCL PAB2-ENCL-R, Installation Instructions 0 downloads PDF
Siemens PAB-ENCL PAD & AMP BOOSTER ENCL 1HU BLK, Environmental Product Declaration 0 downloads PDF
Siemens PAB-ENCL-R PAD & AMP BOOSTER ENCL 1HU RED, Environmental Product Declarations 0 downloads PDF
Siemens PAB2-ENCL PAD & AMP BOOSTER ENCL 2HU BL, Environmental Product Declaration 0 downloads PDF
Siemens PAB2-ENCL-R PAD & AMP BSTR ENCL 2HU RED, Environmental Product Declaration 0 downloads PDF
Siemens PAD-3 Addendum, Installation Instructions 0 downloads PDF
Siemens PAD-3 Auxiliary Power Supply - Notification Appliance Extender, Data Sheet 0 downloads PDF
Siemens PAD-3 Distributed Power Module NAC Expander Installation, Operation, and Maintenance Manual 0 downloads PDF
Siemens PAD-3-UK Upgrade Kit, Installation Instructions 0 downloads PDF
Siemens PAD-4 Distributed Power Module NAC Expander Installation, Operation and Maintenance Manual 0 downloads PDF
Siemens PAD-4 Encl Enclosure and Door for PAD-4 Distributed Power Module NAC Expander, Installation and Power Limited Wiring Instructions 0 downloads PDF
Siemens PAD-4 Single Sheet Reference 0 downloads PDF
Siemens PAD-4-CLSA NAC Extender Board, Installation Instructions 0 downloads PDF
Siemens PAD-4-ENCL, PAD-4-MB NAC Extender with use of FP2011-U1, FP2012-U1 power supplies (for Canada), Data Sheet 0 downloads PDF
Siemens PAD-4-ENCL, PAD-4-MB, FP2011-U1 & FP2012-U1 Distributed Power Supply Unit Notif Appliance Circuit Extender, Data Sheet 0 downloads PDF
Siemens PAD-5 Addressable Power Supply Unit, Data Sheet 0 downloads PDF
Siemens PAD-5-CDC Environmental Product Declaration 0 downloads PDF
Siemens PAD-5-CDC Expansion Board Installation manual 0 downloads PDF
Siemens PAD-5-CLSA Class A B Expansion Board with Releasing, Installation Instructions 0 downloads PDF
Siemens PAD-5-CLSA Environmental Product Declaration 0 downloads PDF
Siemens PAD3-BATT-BRKT Battery Bracket, Installation Instructions 0 downloads PDF
Siemens PAD4-BATT-BRKT Battery Bracket, Installation Instructions 0 downloads PDF
Siemens PAL-1 Parallel Printer, Installation Instructions 0 downloads PDF
Siemens PBA-1191 Linear Beam Smoke Detector, Data Sheet 0 downloads PDF
Siemens PDM-3 0 downloads JPG
Siemens PDM-3 Operating Instructions Air Duct Pressure Differential Meter 0 downloads PDF
Siemens PFT Environmental Product Declaration 0 downloads PDF
Siemens PFT Series Portable FireFighters’ Telephones, Installation Instructions 0 downloads PDF
Siemens PIM-1 Peripheral Interface Module, Installation Instructions 0 downloads PDF
Siemens PLC-4 Power Limiting Module, Installation Instructions 0 downloads PDF
Siemens PLM-35 Power Limiting Module, Data Sheet 0 downloads PDF
Siemens PM-32 Program Matrix Module, Installation Instructions 0 downloads PDF
Siemens PMI PMI-INTL Person-Machine Interface, Installation Instructions 0 downloads PDF
Siemens PMI Downgrade Instructions 0 downloads PDF
Siemens PMI-2 Person-Machine Interface, Installation Instructions 0 downloads PDF
Siemens PMI-2 Portuguese Label 0 downloads TIF
Siemens PMI-3 Environmental Product Declaration 0 downloads PDF
Siemens PMI-3 Label Kit, Environmental Declarations 0 downloads PDF
Siemens PMI-3 Person Machine Interface 3 (FireFinder-only), Data Sheet 0 downloads PDF
Siemens PMI-3 Person-Machine Interface, Installation Instructions 0 downloads PDF
Siemens PMI-S Person-Machine Interface, Installation Instructions 0 downloads PDF
Siemens PMI-UK1 Upgrade Kit, Installation Instructions 0 downloads PDF
Siemens PMI-UK2 Upgrade Kit For Rev 1 to Rev 4 PMIs, Installation Instructions 0 downloads PDF
Siemens PS-35 220 Power Supply Modules, Operation and Installation Instructions 0 downloads PDF
Siemens PS-35 Power Supply Module, Installation Instructions 0 downloads PDF
Siemens PS-5A Power Supply, Installation Instructions 0 downloads PDF
Siemens PS-5N7 Network Interface 5V Power Supply, Installation Instructions 0 downloads PDF
Siemens PSC-12 12 Amp Power Supply for NCCNT WAN, Installation Instructions 0 downloads PDF
Siemens PSC-12 12 Amp Power Supply, Installation Instructions 0 downloads PDF
Siemens PSC-12, PSX-12 (for FireFinder) Power Equipment, Data Sheet 0 downloads PDF
Siemens PSC-12, PTB and PSX-12 Cerberus PRO Modular system-power modules, Data Sheet 0 downloads PDF
Siemens PSC-12, PTB and PSX-12 Desigo Modular system-power modules, Data Sheet 0 downloads PDF
Siemens PSC-12C 12 Amp Power Supply, Installation Instructions 0 downloads PDF
Siemens PSC-17C 17 Amp Power Supply Extender, Installation Instructions 0 downloads PDF
Siemens PSC-17C 17 Amp Power Supply, Installation Instructions 0 downloads PDF
Siemens PSC-ISO-CBL PSC-12 Isolating Cable, Installation Instructions 0 downloads PDF
Siemens PSR-1 Remote Power Supply, Installation Instructions 0 downloads PDF
Siemens PSX-12 12 Amp Power Supply Extender for NCCNT WAN, Installation Instructions 0 downloads PDF
Siemens PSX-12 12 Amp Power Supply Extender, Installation Instructions 0 downloads PDF
Siemens PSX-12C 12 Amp Power Supply Extender, Installation Instructions 0 downloads PDF
Siemens PTB Power Termination Board, Installation Instructions 0 downloads PDF
Siemens PXL Upgrade Kit, Installation Instructions 0 downloads PDF
Siemens Periphery board (250p), Periphery board (500p) 0 downloads PDF
Siemens Planning Tool Desigo Fire UL HQ Version 0 downloads PDF
Siemens Quality Update 1 for Desigo CC Family V5 1 0 downloads PDF
Siemens RC-30U Confirmation Module, Installation Instructions 0 downloads PDF
Siemens RC-30U System 3 Confirmation Module, Data Sheet 0 downloads PDF
Siemens RCC-1 RCC-1F Remote Command Center, Installation Instructions 0 downloads PDF
Siemens RCC-2 RCC-2R and RSE-1 Remote Control Centers, Installation Instructions 0 downloads PDF
Siemens RCC-3 RCC-3R RCC-3C RCC-3F RCC-3FC RCC-3FR Remote Command Center, Installation Instructions 0 downloads PDF
Siemens RCM Declaration - Sinteso 0 downloads PDF
Siemens RCM-1 Audio Riser Control Module, Data Sheet 0 downloads PDF
Siemens RCM-1 Riser Control Module, Installation Instructions 0 downloads PDF
Siemens RDM-MXL Remote Diagnostics Module, Installation Instructions 0 downloads PDF
Siemens RDM-PC Remote Diagnostics Module, Installation Instructions 0 downloads PDF
Siemens REL-EOL Releasing End of Line Module, Installation Instructions 0 downloads PDF
Siemens REMBOX2 REMBOX4 Remote System Enclosures, Installation, Operation and Maintenance Manual 0 downloads PDF
Siemens REMBOX2-MP REMBOX4-MP Mounting Plate, Installation Instructions 0 downloads PDF
Siemens REMBox-4R-Cabinet 0 downloads TIF
Siemens REP-1 Network Repeater Module, Installation Instructions 0 downloads PDF
Siemens RL-30 RL-40 Remote Lamps, Installation Instructions 0 downloads PDF
Siemens RL-HC RL-HW Remote Alarm Lamps, Data Sheet 0 downloads PDF
Siemens RL-HC RL-HW Remote Lamp Ceiling Mount Remote Lamp Wall Mount, Installation Instructions 0 downloads PDF
Siemens RLC-11 RLW-11 Remote Lamps, Installation Instructions 0 downloads PDF
Siemens RLI-1 RLI-2 Remote Alarm Lamps, Data Sheet 0 downloads PDF
Siemens RM-30U RM-30RU Releasing Device Modules, Wiring Instructions 0 downloads PDF
Siemens RNI (for FireFinder) Remote Network Interface, Data Sheet 0 downloads PDF
Siemens RNI Cerberus PRO Modular Remote Network Interface, Data Sheet 0 downloads PDF
Siemens RNI Desigo Fire Safety Modular Remote Network Interface, Data Sheet 0 downloads PDF
Siemens RNI Remote Network Interface, Installation Instructions 0 downloads PDF
Siemens RNI-CAB-BRKT RNI-CBL Mounting Plate and System Cable Kit for Global PMI Applications, Installation Instructions 0 downloads PDF
Siemens ROL Ergo Reference Flyer 0 downloads PDF
Siemens RPM (for FireFinder) Remote Printer Module, Data Sheet 0 downloads PDF
Siemens RPM Cerberus PRO Modular Remote Printer Module, Data Sheet 0 downloads PDF
Siemens RPM Desigo Fire Safety Modular Remote Printer Module, Data Sheet 0 downloads PDF
Siemens RPM Environmental Product Declaration 0 downloads PDF
Siemens RPM Remote Printer Module, Installation Instructions 0 downloads PDF
Siemens RPR-1 Remote Polarized Relay, Installation Instructions 0 downloads PDF
Siemens RR-35 RRS Remote Reset Module and Remote Reset Station, Installation Instructions 0 downloads PDF
Siemens RR-3S Remote Detector Relay, Installation Instructions 0 downloads PDF
Siemens RSAC RSA-11 Remote Sensitivity and Alarm Indicators, Installation Instructions 0 downloads PDF
Siemens RSM Series Remote Switch Modules, Data Sheet 0 downloads PDF
Siemens Reference flyer Fraunhofer CSE, Boston, USA 0 downloads ZIP
Siemens Reference flyer O'Hare, Chicago, USA 0 downloads ZIP
Siemens Referenceflyer Al Hamra Kuwait 0 downloads PDF
Siemens Referenceflyer XLS Healthpoint AbuDhabi 0 downloads PDF
Siemens Regulated Facilities Solution Set Matrix, Presentation 0 downloads PDF
Siemens Regulated Facility Solution Set Matrix 0 downloads PDF
Siemens Regulated Facility Solution Set Matrix - Talon 0 downloads PDF
Siemens Remote Conventional Zone Module, Installation Instructions 0 downloads PDF
Siemens S-15WR and SHMPS-R Supervised Horn Loudspeaker, Data Sheet 0 downloads PDF
Siemens S-HQ 8 Supervised Speakers and Speaker Strobes, Data Sheet 0 downloads PDF
Siemens S-series License Keys for Desigo Fire Safety, Data Sheet, data sheet 0 downloads PDF
Siemens S3AP Adapter Kit for use with EN-PAD(R) or EN-RSE Enclosure or System 3 Rails, Installation Instructions 0 downloads PDF
Siemens SA-3I SA-11 P Air Duct Detectors, Installation Instructions 0 downloads PDF
Siemens SAFEPATH Addressable Paging Splitter and Telephone-Zone Controller, Data Sheet 0 downloads PDF
Siemens SAFEPATH Audio Boosters, Data Sheet 0 downloads PDF
Siemens SBGA-34 Audible Base for HFP 87 series and Cerberus PRO Intelligent Detectors, Data Sheet 0 downloads PDF
Siemens SBGA-34 Audible Base for HFP and 8700 series and Cerberus PRO Intelligent Detectors (for Canada), Data Sheet 0 downloads PDF
Siemens SBGA-34 Audible Base for ‘HFP’ series and Desigo Intelligent Detectors (for Canada), Data Sheet 0 downloads PDF
Siemens SBGA-34 Audible Base for ‘HFP’-series and Desigo Intelligent Detectors, Data Sheet 0 downloads PDF
Siemens SBGA-34 Audible Base, Installation Instructions 0 downloads PDF
Siemens SDH-2 SDH-8 Fire Door Holder, Data Sheet 0 downloads PDF
Siemens SE Notification Appliances Speaker and Speaker Strobes, Data Sheet 0 downloads PDF
Siemens SE, SEC Notification Appliances (for Canada) Speaker and Speaker Strobes, Data Sheet 0 downloads PDF
Siemens SEF Series Notification Appliances Speakers and Speaker Strobes, Data Sheet 0 downloads PDF
Siemens SEFH High-Fidelity Speakers and Speaker Strobes (metal finish), Data Sheet 0 downloads PDF
Siemens SEFH-AHMC-CW-ALERT Alert Amber White Ceiling High 0 downloads JPG
Siemens SEFH-AMC-W-ALERT 0 downloads TIF
Siemens SEFH–High-Fidelity Speakers and Speaker Strobes for Canada (metal finish), Data Sheet 0 downloads PDF
Siemens SEG-FLASH KIT, Installation Instructions 0 downloads PDF
Siemens SEH - High-Fidelity Speakers and Speaker Strobes (plastic finish), Data Sheet 0 downloads PDF
Siemens SEH – High-Fidelity Speakers and Speaker Strobes for Canada (plastic finish), Data Sheet 0 downloads PDF
Siemens SEH-AMC-W-ALERT Speaker-Strobe, Wall, Amber, Alert, White 0 downloads JPG
Siemens SET Notification Appliances VANDAL, Data Sheet 0 downloads PDF
Siemens SET Series Notification Appliances Strobes and Strobe Plates, Data Sheet 0 downloads PDF
Siemens SET-CMC-R-MNS-ALERT SET-AMC-W-MNS-ALERT SET-CMC-CW-MNS-ALERT SET- Mass Notification Speaker-Strobes Appliances, Data Sheet 0 downloads PDF
Siemens SFPO-11 SFP-11 SFPT-11 FirePrint Photoelectric Detector FirePrint Detector FirePrint Thermal Detector, Installation Instructions 0 downloads PDF
Siemens SIE2018 DesigoCC Migration, Flyer 0 downloads PDF
Siemens SIM-16 (for FireFinder) Supervised Input Module, Data Sheet 0 downloads PDF
Siemens SIM-16 Cerberus PRO Modular Supervised Input Module, Data Sheet 0 downloads PDF
Siemens SIM-16 Desigo Modular Supervised Input Module, Data Sheet 0 downloads PDF
Siemens SIM-16 Supervised Input Module, Installation Instructions 0 downloads PDF
Siemens SIM-16RC Supervised Input Module Ribbon Cable, Installation Instructions 0 downloads PDF
Siemens SL Series - High Fidelity Speakers and Speaker Strobes - Ceiling Only, data sheet 0 downloads PDF
Siemens SL Series - Horns, Strobes and Horn- Strobes - Indoor Wall, data sheet 0 downloads PDF
Siemens SL Series Notification Appliances 0 downloads TIF
Siemens SL Series – High-Fidelity Speaker Speaker-Strobes - Indoor, Wall-Only 0 downloads PDF
Siemens SL-Series Supply Chain Interruptions 0 downloads PDF
Siemens SLFS and SLFSS Series – Low-Frequency Sounders Sounder-Strobes, data sheet 0 downloads PDF
Siemens SLFS and SLFSS – Wall-Mount Sounder and LED Sounder-strobes Notification Appliances, Installation Instructions 0 downloads PDF
Siemens SLFSSWR-CO 0 downloads TIF
Siemens SLFSWR-CO 0 downloads JPG
Siemens SLH, SLS and SLHSC – Ceiling-Mount Horns and LED Horn Strobes Notification Appliances, Installation Instructions 0 downloads PDF
Siemens SLHC, SLSC and SLHSC-series of Ceiling-Mount Horns and Horn Strobes of Notification Appliances, data sheet 0 downloads PDF
Siemens SLHSCR-A 0 downloads JPG
Siemens SLHSCR-N Horn Strobe, Ceiling, Red, No-Text, Clear 0 downloads TIF
Siemens SLHSWR-FB 0 downloads JPG
Siemens SLIM Loop Isolator Module, Installation Instructions 0 downloads PDF
Siemens SLIM Loop Isolator Module, Installations Instructions 0 downloads PDF
Siemens SLS, SLHS and SLHSW – Wall-Mount Horns and LED Horn Strobes Notification Appliances, Installation Instructions 0 downloads PDF
Siemens SLS, SLSPS – Ceiling-Mount Speaker and LED Speaker Strobes Notification Appliances, Installation Instructions 0 downloads PDF
Siemens SLS, SLSPS – Wall-Mount Speaker and LED Speaker Strobes Notification Appliances, Installation Instructions 0 downloads PDF
Siemens SLSCR-A 0 downloads TIF
Siemens SLSCR-FB 0 downloads TIF
Siemens SLSPSCW-ALA Speaker Strobe, Ceiling, White, Alert, Amber 0 downloads TIF
Siemens SLSPSWR-M 0 downloads JPG
Siemens SLSPWW-N Speaker, Wall, White, No-Text 0 downloads TIF
Siemens SLT-1 Leased Line Municipal Tie Module, Data Sheet 0 downloads PDF
Siemens SLT-1 Leased Line Municipal Tie Module, Installation Instructions 0 downloads PDF
Siemens SLT-1-UK Upgrade Kit, Installation Instructions 0 downloads PDF
Siemens SM-30 Switch Module, Installation Instructions 0 downloads PDF
Siemens SM-30 System 3 Switch Control Module, Data Sheet 0 downloads PDF
Siemens SMBOX-XMP 0 downloads TIF
Siemens SMBOX-XMP, APLT-XMP, 4DGBOX-XMP, Manual Pull Station, Installation Instructions 0 downloads PDF
Siemens SMS-2S SMS-SA Dual Stage Manual Station Single Stage Manual Station with Auxiliary Contacts, Installation Instructions 0 downloads PDF
Siemens SNC Environmental Product Declaration 0 downloads PDF
Siemens SNC Serial Network Card for USB Application with Windows, Installation Instructions 0 downloads PDF
Siemens SNC XNET Interface Card for Management Stations, Data sheet 0 downloads PDF
Siemens SNU ASSY Single Node Upload, Installation Instructions 0 downloads PDF
Siemens SNU-series Single Node Upload modules for FireFinder panels, Data Sheet 0 downloads PDF
Siemens SP-SVC and SPRM Supervised Volume Control and Remote Microphone, Data Sheet 0 downloads PDF
Siemens SP4-LOC-FB Remote Microphone and Local Operator Console, Data Sheet 0 downloads PDF
Siemens SP4-RMX Remote Microphone Expansion Module, Data Sheet 0 downloads PDF
Siemens SP40S Emergency Communications Voice Evacuation System, data Sheet 0 downloads PDF
Siemens SP4Z-A B Speaker Audio Splitter, Data Sheet 0 downloads PDF
Siemens SR-30 Supplementary Relay Module, Installation Instructions 0 downloads PDF
Siemens SR-30 System 3 Supplementary Relay Module, Data Sheet 0 downloads PDF
Siemens SR-32 Supplementary Relay Module, Installation Instructions 0 downloads PDF
Siemens SR-32 System 3 Supplementary Relay Module, Data Sheet 0 downloads PDF
Siemens SR-35 Supplementary Relay Module, Installation Instructions 0 downloads PDF
Siemens SR-35 System 3 Supplementary Relay, Data Sheet 0 downloads PDF
Siemens SRC-8 Addressable 8-Output Relay Module, Installation Instructions 0 downloads PDF
Siemens SRC-8 Eight Relay Output Module, Data Sheet 0 downloads PDF
Siemens SSD SSD-INTL System Status Display, Installation Instructions 0 downloads PDF
Siemens SSD-C SSD-C-INTL System Status Display with Control, Installation Instructions 0 downloads PDF
Siemens SSD-C-REM Remote System Status Display with Control, Installation Instructions 0 downloads PDF
Siemens SSD-series (for FireFinder) Status Displays, Data Sheet 0 downloads PDF
Siemens SSD-series Cerberus PRO Modular System Status Displays, Data Sheet 0 downloads PDF
Siemens SSD-series Desigo Fire Safety Modular System Status Displays, Data Sheet 0 downloads PDF
Siemens ST Series Strobes and Strobe Plates Indoor Outdoor, Data Sheet 0 downloads PDF
Siemens ST- Mass Notification Clear and Amber Lens Standalone Strobe Appliances, Data Sheet 0 downloads PDF
Siemens STRI-M Addressable Interface Module, Installation Instructions 0 downloads PDF
Siemens STRI-S STRI-D STRI-R Addressable Switch Interface Modules, Installation Instructions 0 downloads PDF
Siemens SXL-AK Adapter Kit, Installation Instructions 0 downloads PDF
Siemens SXL-EX Connections To SK5128 & SK5129 Communicators 0 downloads PDF
Siemens SXL-EX Conventional Zone Fire Alarm Control Panel, Data Sheet 0 downloads PDF
Siemens SXL-EX Installation Operation and Maintenance Manual 0 downloads PDF
Siemens SXL-EX-INT 220 240V Transformer, Wiring Installation Instructions 0 downloads PDF
Siemens SXL-EX-UK Upgrade Kit, Installation Instructions 0 downloads PDF
Siemens SXL-XMAIN board is not compatible with older SXL-EX transformer 0 downloads PDF
Siemens SZE-4X Zone Output Expander Module, Installation Instructions 0 downloads PDF
Siemens SZE-4X Zone Expansion Module, Data Sheet 0 downloads PDF
Siemens SZE-8AX Class 'A' Expander Module, Data Sheet 0 downloads PDF
Siemens SZE-8AX Zone Output Expander Module, Installation Instructions 0 downloads PDF
Siemens SZM Remote Conventional Zone Module, Installation Instructions 0 downloads PDF
Siemens Scalance X204-2 0 downloads TIF
Siemens Scalance X204-2 Multimode and X204-2LD Single Mode Ethernet Fiber Switch, Installation Instructions 0 downloads PDF
Siemens Series -RK Cerberus PRO Modular Rack-Mount Kits, Data Sheet 0 downloads PDF
Siemens Series -RK Desigo Fire Safety Modular Rack-Mount Kits, Data Sheet 0 downloads PDF
Siemens Series-RK (for FireFinder) Rack Mount Kits, Data Sheet 0 downloads PDF
Siemens Siemens ASD 0 downloads PDF
Siemens Siemens SL-Series Surface backbox (SLSBB) SL-Series Adapter Kit (SLSGP) 0 downloads PDF
Siemens Simple migration strategies for maximum fire protection, Flyers 0 downloads PDF
Siemens Single-Node Upload (SNU) Modules for Cerberus PRO Modular FACPs, Data Sheet 0 downloads PDF
Siemens Single-Node Upload (SNU) Modules for Desigo Modular FACPs, Data Sheet 0 downloads PDF
Siemens Sintony SI400 OPC Interface Specifications Version 3 0 0 downloads PDF
Siemens Sintony SI400 OPC Interface Specifications Version 4 0 0 downloads PDF
Siemens Smart buildings for a smarter future 0 downloads PDF
Siemens Smoke Control Actuating DXR installation instructions 0 downloads PDF
Siemens Software Protection Dongle 0 downloads JPG
Siemens Stairway to success – planning and sales support tools 0 downloads PPTX
Siemens Surface Mt Box, X-series MPS, Environmental Product Declaration 0 downloads PDF
Siemens System 3 Control Panel Marine Fire Detection System Manual, UL Certificates 0 downloads PDF
Siemens System 3 Marine Fire Detection System Manual 0 downloads PDF
Siemens System 3 Typical Wiring Diagram, Installation Instructions 0 downloads PDF
Siemens TBM-2 Termination Block Module, Installation Instructions 0 downloads PDF
Siemens TG-11 SOLO-330 SOLO-332 Detector Test Gas, Data Sheet 0 downloads PDF
Siemens TICAC Input Class A Converter Adder Module, Installation Instructions 0 downloads PDF
Siemens TL-30U System 3 Control Module, Data Sheet 0 downloads PDF
Siemens TL-30U Time Limit Module, Installation Instructions 0 downloads PDF
Siemens TMM-1 Telephone Master Module, Installation Instructions 0 downloads PDF
Siemens TOCAC Input Class A Converter Adder Module, Installation Instructions 0 downloads PDF
Siemens TPR-300 Polarity Reversal and City Tie Module Installation 0 downloads PDF
Siemens TRA, Single Control, Multiple Benefits, White Paper 0 downloads PDF
Siemens TRI-B6M Addressable Interface Module, Installation Instructions 0 downloads PDF
Siemens TRI-B6M Intelligent Device Interface Module, Data Sheet 0 downloads PDF
Siemens TRI-S TRI-D TRI-R Intelligent Initiating Devices Interface Module, Data Sheet 0 downloads PDF
Siemens TRI-S, TRI-D, TRI-R Addressable Interface Modules, Installation Instruction 0 downloads PDF
Siemens TRI-S, TRI-D, TRI-R Addressable Interface Modules, Installation Instructions 0 downloads PDF
Siemens TRM-306 Six Relay Adder Module, Installation Instructions 0 downloads PDF
Siemens TSM-1 Duct Detector Test Switch for FireFinder panels, Data Sheet 0 downloads PDF
Siemens TSM-1 Test Switch Module, Installation Instructions 0 downloads PDF
Siemens TSM-1X EPD 0 downloads PDF
Siemens TSM-1X Intelligent Test Switch Module with Dual Isolators, Installation Instructions 0 downloads PDF
Siemens TSM-1X Intelligent Test Switch and Status Indicator, Data Sheet 0 downloads PDF
Siemens TSP-40A Logging Printer, Installation Instructions 0 downloads PDF
Siemens TSP-XB Bracket and Front Plate for TSP-40A Logging Printer, Installation Instructions 0 downloads PDF
Siemens TSP-XC TSP-40A Cable Kit for FireFinder-XLS, Installation Instructions 0 downloads PDF
Siemens TSRM-312 Remote Relay, Installation and Operation Manual 0 downloads PDF
Siemens TSW-2 Tamper Switch, Installation Instructions 0 downloads PDF
Siemens TXB3 E-1, MS TP Bus Interface Module, Installation Instructions 0 downloads PDF
Siemens TXR-320 Conventional Releasing Panel, Flyer 0 downloads PDF
Siemens TXR-320 Pre-Action, Deluge and Agent-Releasing Conventional FACP 0 downloads PDF
Siemens TZC-8B (for FireFinder) Firefighters’ Telephone Zone Card, Data Sheet 0 downloads PDF
Siemens TZC-8B Cerberus PRO Modular Telephone Zone Card, Data Sheet 0 downloads PDF
Siemens TZC-8B Desigo Modular Telephone Zone Card, Data Sheet 0 downloads PDF
Siemens TZC-8B Telephone Zone Card, Installation Instructions 0 downloads PDF
Siemens The APOGEE Compliance Solution with Desigo CC— Technological Elements for 21 CFR Part 11 Compliance, Specification Sheet 0 downloads PDF
Siemens The Ingenuity Center at Siemens, Flyer 0 downloads PDF
Siemens Thermal Fire Detectors Explosion Proof Models, Data Sheet 0 downloads PDF
Siemens Total Room Automation - Building Operator, Flyer 0 downloads PDF
Siemens Total Room Automation - General Contractor, Flyer 0 downloads PDF
Siemens Total Room Automation, Brochure 0 downloads PDF
Siemens Total Room Automation, a Truly Unique Solution, Presentation 0 downloads PDF
Siemens Touch Panels 10 1-in and 15 6-in Technical Specification Sheet 0 downloads PDF
Siemens Touch Panels 7 0-in Technical Specification Sheet 0 downloads PDF
Siemens U-MHU Series 0 downloads PDF
Siemens UHW-CATA-PKG-SM 0 downloads TIF
Siemens UHW-CATB-01 ULULC Computer w OS & SNC 0 downloads TIF
Siemens UL268 7th Edition Smoke Detectors, brochure 0 downloads PDF
Siemens Using DXRs and Central Functions for Central Operating Mode 0 downloads PDF
Siemens Using DXRs and Central Functions for Duct Static Pressure Reset 0 downloads PDF
Siemens VCA2002-A1 Card Cage, Installation Instructions 0 downloads PDF
Siemens VCA2002-A1 Environmental Product Declaration 0 downloads PDF
Siemens VCC2001-A1 Environmental Product Declaration 0 downloads PDF
Siemens VCC2001-A1 Voice CPU Card, Installation Instructions 0 downloads PDF
Siemens VCC2002-A1 - Environmental Product Declaration 0 downloads PDF
Siemens VCC2002-A1 Voice input Output Card, Installation Instructions 0 downloads PDF
Siemens VCI2001-U1 Environmental Product Declaration 0 downloads PDF
Siemens VCI2001-U1 Voice Amplifier Card, Installation Instructions 0 downloads PDF
Siemens VCI2003-A1 - Environmental Product Declaration 0 downloads PDF
Siemens VCI2003-A1 Barix VoIP Module, Installation Instructions 0 downloads PDF
Siemens VES-A00-P 0 downloads TIF
Siemens VES-A10-P 0 downloads TIF
Siemens VESDA CPY-HLI Intelligent Interface, Data Sheet 0 downloads PDF
Siemens VESDA LaserCOMPACT, Data Sheet 0 downloads PDF
Siemens VESDA LaserFOCUS, Data Sheet 0 downloads PDF
Siemens VESDA LaserPLUS, Data Sheet 0 downloads PDF
Siemens VIK-1 Vibration Isolator Kit, Installation Instructions 0 downloads PDF
Siemens VN2001-A1 - Environmental Product Declaration 0 downloads PDF
Siemens VN2001-A1 Ethernet Module (10 100 BaseTx), Installation Instructions 0 downloads PDF
Siemens VN2002-A1 VN2003-A1 Ethernet Module (MM) (SM), Installation Instructions 0 downloads PDF
Siemens VNT Series Virtual Network Tunnel, Data sheet 0 downloads PDF
Siemens VNT Virtual Network Tunnel, Installation Instructions 0 downloads PDF
Siemens VNT series Cerberus PRO Modular Virtual Network Tunnel, Data Sheet 0 downloads PDF
Siemens VNT series Desigo Fire Safety Modular Virtual Network Tunnel, Data Sheet 0 downloads PDF
Siemens VNT-APP 0 downloads TIF
Siemens VNT-MP Mounting Plate, Installation Instructions 0 downloads PDF
Siemens VNT-PS Power Supply for VNT, Installation Instructions 0 downloads PDF
Siemens VPM VESDA Peripheral Module, Installation Instructions 0 downloads PDF
Siemens VPM, VPM-MP and VESDA-HLI-KIT High-Level Interface Equipment, Data Sheet 0 downloads PDF
Siemens VPM, VPM-MP and VESDA-HLI-KIT VESDA Desigo High-Level Interface Equipment, Data Sheet 0 downloads PDF
Siemens VPM, VPM-MP and VESDA-HLI-KIT VESDA High-Level Interface Equipment, data sheet 0 downloads PDF
Siemens VPM-MP Mounting Plate for the VPM, Installation Instructions 0 downloads PDF
Siemens VSA-1 Visual Switch Annunciator Module, Installation Instructions 0 downloads PDF
Siemens VSM-1 VLM-1 VSB-1 Visual Modules, Installation Instructions 0 downloads PDF
Siemens VSP-TP-KIT-US 0 downloads JPG
Siemens VTA2001-A1 Environmental Product Declaration 0 downloads PDF
Siemens VTA2001-A1 Voice Terminal Board - Class B, Installation Instructions 0 downloads PDF
Siemens VTO2001-U2 VTO2001-U3 Environmental Product Declaration 0 downloads PDF
Siemens VTO2001-U2 VTO2001-U3 Option Module (24 Switches), Installation Instructions 0 downloads PDF
Siemens VTO2004-U2 VTO2004-U3 Environmental Product Declaration 0 downloads PDF
Siemens VTO2004-U2 VTO2004-U3 Option Module (Microphone), Installation Instructions 0 downloads PDF
Siemens VTO2004-U2 Desigo 0 downloads JPG
Siemens Vesda OSE-HPW, OSE-SP, OSE-SPW, OSI-10, OSI-90, OSID-INST, OSP-001, OSP-002, and VKT-301, Data Sheet 0 downloads PDF
Siemens X204-2 Series SCALANCE Ethernet Fiber Switches, Data sheet 0 downloads PDF
Siemens XAS-1-US, XAS-2-US Addressable Air-Aspiration Duct Smoke Detectors, Data Sheet 0 downloads PDF
Siemens XCI2001 -U1 Releasing module, Installation Instructions 0 downloads PDF
Siemens XCI2001-U1 Cerberus PRO Releasing Module, Data Sheet 0 downloads PDF
Siemens XCI2001-U1 Desigo Releasing Module, Data Sheet 0 downloads PDF
Siemens XDACT Cerberus PRO Modular Communications Transmitter, Data Sheet 0 downloads PDF
Siemens XDACT Desigo Fire Safety Modular Communications Transmitter, Data Sheet 0 downloads PDF
Siemens XDACT-ASSY Assembly, Installation Instructions 0 downloads PDF
Siemens XDACT-ASSY for FireFinder panels, Data Sheet 0 downloads PDF
Siemens XDLC Cerberus PRO Modular Class X Device Loop Card, Data Sheet 0 downloads PDF
Siemens XDLC Class X Device Loop Card, Installation Instructions 0 downloads PDF
Siemens XDLC Desigo Modular Class X Device Loop Card, Data Sheet 0 downloads PDF
Siemens XDLC Environmental Product Declaration 0 downloads PDF
Siemens XDMC Cerberus PRO Modular Digital Message Card, Data Sheet 0 downloads PDF
Siemens XDMC Desigo Fire Safety Modular Digital Message Card, Data Sheet 0 downloads PDF
Siemens XDMC Digital Message Card for FireFinder panels, Data Sheet 0 downloads PDF
Siemens XDMC XLS Desigo Fire Safety Modular Cerberus PRO Modular Digital Message Card, Installation Instructions 0 downloads PDF
Siemens XEA-1 2 and XED-1 XED-2 Adapter Plate and Door, Installation Instructions 0 downloads PDF
Siemens XLD-1 Analog Loop Driver, Installation Instructions 0 downloads PDF
Siemens XLS-EXT-CABLE-PKG, Installation Instructions 0 downloads PDF
Siemens XLS-MLE6(R)-ADPT Adapter Kit, Installation Instructions 0 downloads PDF
Siemens XLS-MME3(R)-ADPT Adapter Kit, Installation Instructions 0 downloads PDF
Siemens XLS-MSE2(R)-ADPT, Installation Instructions 0 downloads PDF
Siemens XLS-MSE3(R)-ADPT Adapter Kit, Installation Instructions 0 downloads PDF
Siemens XLS-RCC13-ADPT Adapter Kit, Installation Instructions 0 downloads PDF
Siemens XLS-RCC13F-ADPT Adapter Kit, Installation Instructions 0 downloads PDF
Siemens XMH-501 0 downloads TIF
Siemens XMH-501 Conv Double Action Agent Release, Environmental Product Declaration 0 downloads PDF
Siemens XMI FireFinder-XLS to MDACT Interface, Installation Instructions 0 downloads PDF
Siemens XMS-501 Conv Double Action, Environmental Product Declaration 0 downloads PDF
Siemens XMS-51 XMS-501 XMH-501 Single Dual Action Manual Pull Station, Installation Instructions 0 downloads PDF
Siemens XMS-51 Conventional single action, Environmental Product Declaration 0 downloads PDF
Siemens XMS-D 0 downloads JPG
Siemens XMS-D Addressable double action MPS isolation, Environmental Product Declaration 0 downloads PDF
Siemens XMS-DE 0 downloads TIF
Siemens XMS-DE Addressable, Double action, Iso Spanish, Environmental Product Declaration 0 downloads PDF
Siemens XMS-DP Addressable, Double action, Iso Portuguese, Environmental Product Declaration 0 downloads PDF
Siemens XMS-M 0 downloads TIF
Siemens XMS-M Addressable Metal Pull Station, Environmental Product Declaration 0 downloads PDF
Siemens XMS-S 0 downloads JPG
Siemens XMS-S XMS-D XMS-M Single Dual Action Manual Pull Stations, Installation Instructions 0 downloads PDF
Siemens XMS-S Addressable, single action MPS isolation, Environmental Product Declaration 0 downloads PDF
Siemens XMS-S, XMS-D, and XMS-M - XMS-Series manual pull stations, Data Sheet 0 downloads PDF
Siemens XMS-SE Adressable, single action, Iso Spanish, Environmental Product Declaration 0 downloads PDF
Siemens XMS-SP XMS-DP XMS-SE XMS-DE Single Dual Action Manual Pull Stations, Installation Instructions 0 downloads PDF
Siemens XMS-SP Adressable, single action, Iso Portuguese, Environmental Product Declaration 0 downloads PDF
Siemens XND 0 downloads TIF
Siemens XND MNET HNET Network Interface, Installation Instructions 0 downloads PDF
Siemens XTRI-D EPD 0 downloads PDF
Siemens XTRI-D, XTRI-R, XTRI-S Intelligent Device Interface Modules, Data Sheet 0 downloads PDF
Siemens XTRI-M Addressable Interface Module with Dual Isolators, Installation Instructions 0 downloads PDF
Siemens XTRI-M EPD 0 downloads PDF
Siemens XTRI-M Intelligent Interface (Mini) Module, Data Sheet 0 downloads PDF
Siemens XTRI-R EPD 0 downloads PDF
Siemens XTRI-S XTRI-D XTRI-R Addressable Switch Interface Modules with Dual Isolators, Installation Instructions 0 downloads PDF
Siemens XTRI-S EPD 0 downloads PDF
Siemens ZAC-30 Zone Amplifier Card, Installation Instructions 0 downloads PDF
Siemens ZAC-40 Cerberus PRO Modular Zone-Amplifier Card, Data Sheet 0 downloads PDF
Siemens ZAC-40 Desigo Modular Zone-Amplifier Card, Data Sheet 0 downloads PDF
Siemens ZAC-40 Zone Amplifier Card (40 Watt), Data Sheet 0 downloads PDF
Siemens ZAC-40 Zone Amplifier Card 40W (500-035400 S24235-B1-A2 (70V), Installation Instructions 0 downloads PDF
Siemens ZAM-180 Cerberus PRO Modular Zone-Amplifier Module, Data Sheet 0 downloads PDF
Siemens ZAM-180 Desigo Modular Zone-Amplifier Module (180-Watt), Data Sheet 0 downloads PDF
Siemens ZAM-180 Zone Amplifier Module 180W , Installation Instructions for North America 0 downloads PDF
Siemens ZAM-180 Zone-Amplifier Module (180-Watt), Data Sheet 0 downloads PDF
Siemens ZC2 4AB Zone Control Card Module, Installation Instructions 0 downloads PDF
Siemens ZC2-8B Zone Control Card Module, Installation Instructions 0 downloads PDF
Siemens ZC3-4AB Zone Control Card Module, Installation Instructions 0 downloads PDF
Siemens ZCI-8B Zone Control Card Module, Installation Instructions 0 downloads PDF
Siemens ZCT-8B Zone Control Telephone Card Module, Installation Instructions 0 downloads PDF
Siemens ZH and ZR Strobes, Horns and Horn Strobes, Data Sheet 0 downloads PDF
Siemens ZH and ZR series (for Canada) notification appliances, data sheet 0 downloads PDF
Siemens ZIC-2C 2 Channel Audio Enhancement Card, Installation Instructions 0 downloads PDF
Siemens ZIC-4A (for FireFinder) Zone Indication Card, Data Sheet 0 downloads PDF
Siemens ZIC-4A Cerberus PRO Modular Zone Indication Card, Data Sheet 0 downloads PDF
Siemens ZIC-4A Desigo Fire Safety Modular Zone Indication Card, Data Sheet 0 downloads PDF
Siemens ZIC-4A Single Sheet Reference 0 downloads PDF
Siemens ZIC-4A Zone Indicating Card, Installation Instructions 0 downloads PDF
Siemens ZIC-4AC Zone Interface Card, Installation Instructions 0 downloads PDF
Siemens ZIC-8B (with ZIC-2C) Zone Indicating Cards for FireFinder panels, Data Sheet 0 downloads PDF
Siemens ZIC-8B Cerberus PRO Modular Zone-Indicating Cards (with Model ZIC-2C mounted), Data Sheet 0 downloads PDF
Siemens ZIC-8B Desigo Modular Zone-Indicating Cards (with Model ZIC-2C mounted), Data Sheet 0 downloads PDF
Siemens ZIC-8B Zone Indicating Card, Installation Instructions 0 downloads PDF
Siemens ZN-31U Dual Contact Zone Module, Operation and Installation Instructions 0 downloads PDF
Siemens ZN-31U System 3 Input Module, Data Sheet 0 downloads PDF
Siemens ZN-34US ZN-34UA Gate Valve Supervision Modules, Installation Instructions 0 downloads PDF
Siemens ZN-34US ZN-34UA System 3 Sprinkler Valve Supervision Module, Data Sheet 0 downloads PDF
Siemens ZS-30 Intrinsically Safe Module, Installation Instructions 0 downloads PDF
Siemens ZU-35 ZU-35DS ZU-35TS Dual Zone Module, Installation Instructions 0 downloads PDF
Siemens ZU-35 ZU-35DS ZU-35TS Dual Zone System 3 Dual-Zone Input Modules, Data Sheet 0 downloads PDF





















































































































































































































































































































































































































































































































































































































































































































































































































































































































































































































































































































































































































































































































































































































